Wohnungen | S-I-1036 Zadar - Diklovac

Grundinformationen

Zum Verkauf steht ein hochwertiges und modernes Neubauprojekt mit Meerblick in exzellenter, ruhiger Lage in Zadar, im Stadtteil Diklovac.
Es handelt sich um ein Mehrfamilienhaus (Untergeschoss, Erdgeschoss, 1. und 2. Obergeschoss sowie Dachterrassen) mit 10 Wohneinheiten. Jede Wohnung verfügt über zwei Parkplätze im Hof ​​sowie einen Abstellraum im Untergeschoss. Einige Erdgeschosswohnungen haben einen eigenen Gartenbereich, und die Wohnungen im 2. Obergeschoss bieten Dachterrassen mit herrlichem Blick auf das Meer und die vorgelagerten Inseln.
Alle Etagen, vom Untergeschoss bis zur Dachterrasse, sind mit einem Aufzug verbunden.
Die Fertigstellung ist für Juli 2026 geplant, die Übergabe der Nutzungsgenehmigung für September 2026.
Möglichkeit der Zahlung einer Anzahlung von 10%, der Restbetrag wird nach Erhalt der Nutzungsgenehmigung für die Einrichtung per Kreditzahlung beglichen.
 
Ausstattung:
Die Wohnungen sind mit Fußbodenheizung in Wohnzimmer und Bädern ausgestattet.
Alle Räume verfügen über Klimaanlagen mit Heiz- und Kühlfunktion.
Hochwertige PVC-Außenfenster und -türen mit dreifach verglasten Isolierglasscheiben und Aluminium-Rollläden werden installiert. Die Eingangstür ist einbruch- und feuerfest.
Sie können den Bodenbelag (Parkett oder Fliesen) innerhalb des vorgegebenen Budgets wählen oder gegen Aufpreis – nach Absprache mit dem Bauträger – Ihren eigenen Wunschboden gestalten.
Am Gebäudeeingang wird eine Video-Gegensprechanlage installiert.
 
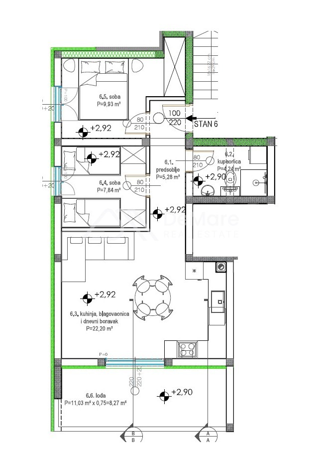
1. OG - S6: Wohnung mit 2 Schlafzimmern und Loggia
Die Wohnung befindet sich im ersten Obergeschoss und besteht aus:
- Flur / 5,28 m²,
- Wohn-/Essbereich mit offener Küche / 22,20 m²,
- 2 Schlafzimmer / 9,93 m² und 7,84 m²,
- Badezimmer / 4,24 m² und
- Loggia / 11,03 m².
Die Wohnfläche der Wohnung beträgt 49,40 m².
Zur Wohnung gehört außerdem ein Abstellraum (3,34 m²) im Untergeschoss sowie zwei Außenstellplätze (2 x 13,75 m²) im Garten.
Die Gesamtnutzfläche der Wohnung beträgt 64,84 m².
 
Für weitere Informationen kontaktieren Sie uns bitte!
De Mare d.o.o.
Tel.: +385 23 300 400
E-Mail: info@demare.hr
 
LAGE:
Die Lage der Immobilie ist hervorragend, da sie sich in unmittelbarer Nähe zum Meer und Strand (ca. 650 m), ca. 3 km vom Stadtzentrum und ca. 17 km vom Flughafen Zemunik entfernt befindet.
Diklovac liegt oberhalb von Diklo, einem exklusiven Viertel von Zadar, direkt an der Küste mit zahlreichen Ferienunterkünften, Restaurants, Bars und Geschäften. Eine lange Strandpromenade führt zum örtlichen Yachthafen, und die Kieselküste bietet einen wunderschönen Blick auf die Inseln des Zadar-Archipels.

Zusätzliche Informationen

ID-Nummer S-I-1036
Typ verkauf - wohnung
Untertyp Wohnung im Gebäude
Staat Hrvatska
Region Zadarska
Stadt Zadar
Gemeinde Zadar
Stadtteil Diklovac
Gesamtpreis 272.328 EUR
Preis pro m2 4.200 EUR
Fläche 64.84 m2
Entfernung vom Meer 650 m
Entfernung vom Zentrum 3000 m
Anzahl der Zimmer 3
Anzahl der Badezimmer 1
Obergeschoss 1
Baujahr 2026
Zustand Neubau,Im Bau
Zusätzlicher Raum
  • Esszimmer
  • Wohnzimmer
  • Flur
  • Küche
  • Badezimmer
  • Loggia
  • Parkplatz
  • Schlafzimmer
  • Abstellraum
Infrastruktur
  • Städtische Wasserversorgung
  • Stromanschluss
Beschreibung
  • Ruhige Lage
  • Meerblick
  • Teilweiser Meerblick
  • Asphaltierte Zufahrt
  • Projektdokumentation
  • Große Terrasse
  • Große Glasfronten

Wohnung im Gebäude

64.84 m2
S-I-1036
Preis
272.328 EUR

Interessieren Sie sich für diese Immobilie?

Kontaktieren Sie uns!

+385 23 300 400

info@demare.hr


Öffnungszeiten:
Mo-Fr / 08-16 Uhr und nach Vereinbarung.

NOTE! This site uses cookies and similar technologies.

If you not change browser settings, you agree to it. Learn more

I understand

The use of cookies

We wish this web page to function properly and have the obligation to improve it further. This and our intention to improve your experience, requires for the page to store a small amount of information (cookies) onto your computer. Over 90% of all web sites use cookies. However, in accordance to the EU regulations from March 23rd 2011, we are obliged to ask for your approval before storing cookies onto your disc. By using our web site you agree to use cookies. If you wish to block cookies you can still access the site, but some of its features will not be available to you.

What is a cookie?
A cookie is a piece of information stored onto your computer by the web site you visit. Cookies in principle store your settings, the settings for web site you visit, such as preferred language and address. Later on, when you re-visit the same site, internet browser sends back the cookies belonging to the site. This enables the site to present the information adapted to your needs.

Cookies can store a wide range of information, including personal ones (such as your name of e-mail address). Still, this information can be stored only if you permit it to be stored – web sites cannot approach the information you have not made available and cannot reach other data (files or otherwise) on your computer. The process of data storing and sending cookies to you cannot be seen. However, you can change your settings on internet browser so as to be able to choose whether the request for storing cookies will be approved or refused, to erase stored cookies automatically when closing the internet browser etc.

How to disable the cookies ?
Disabling the cookies you decide whether to let the cookies be stored on your computer or not. Cookies setting can be controller and configures in your web browser. To get the information on cookies settings, select the browser you use. • Chrome • Firefox • Internet Explorer 9 • Opera (English page) • Safari (English page) If you disable the cookies you will not be able to use some of the web site functions.

What are temporary cookies ?
Temporary cookies, or session cookies, are removed from the computer by closing the internet browser. They are used by web-sites to store temporary data, such as settings in an e-buying basket.

What are persistent cookies ?
Persistent or stored cookies remain on the computer after closing the internet browser programme. Web-sites use them to store the data, such as user name and password, so that you do not need to login every time you visit a particular site. Persistent cookies will remain on your computer for days, months, even years.

What are first-party cookies ?
First-party cookies come from the web-site you are currently visiting, and can be persistent or temporary. Web-sites use these cookies to store the data to be used at your next visit to the particular web-site.

Does Cropex.hr use cookies ?
Yes, wishing primarily for out web-sites to provide a more satisfactory user experience for you.

What kind of cookies Cropex.hr uses and why ?

Are there any third-party cookies on our web-site ?
There are some outer services which store limited cookies to the user. These cookies have not been set by this web-site. However, some are used to enable normal functioning of some options, enabling users easier access to the contents. Presently, we enable:

 

Additional information of disabling cookies
There are currently few sites to help you disable storing cookies for various services.

Additional information can be found at the following web-sites;