Wohnungen | S-864 Nin -

Grundinformationen

Luxuswohnung/Apartment zum Verkauf, nur 20 m vom Meer entfernt in Zaton. Es handelt sich um ein neues Gebäude mit Aufzug in der 2. Reihe zum Meer in Zaton bei Zadar, die Wohnung hat teilweise Meerblick.
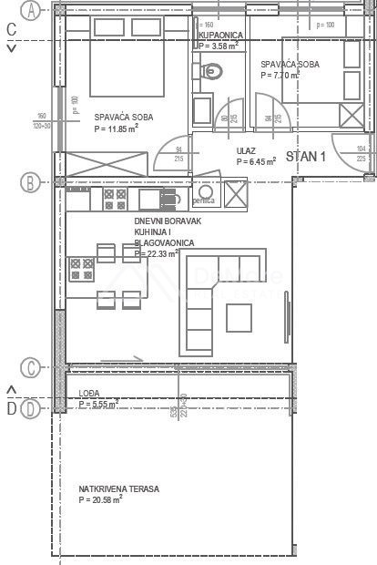
Die Wohnung im Erdgeschoss besteht aus einem Flur, 2 Schlafzimmern, einem Badezimmer, einer Küche mit Esszimmer und einem Wohnzimmer sowie einer überdachten Terrasse. Die Nettonutzfläche der beschriebenen Räumlichkeiten mit Terrasse beträgt 66,36 m2. Darüber hinaus hat die Wohnung noch zwei Parkplätze und einen Garten von ca. 29 m2.
Die Gesamtnettofläche der Wohnung mit zusätzlichen Flächen beträgt 76,41 m2.
Voraussichtlicher Einzugstermin ist im Sommer 2024.
Der Investor ist eine GmbH, und deshalb zahlt der Käufer keine Immobilienumsatzsteuer.
Zahlung des ersten Teilbetrags in Höhe von 10 % des Immobilienpreises (Anzahlung) und für den Restbetrag die Möglichkeit der Finanzierung mit einem Wohnungsbaudarlehen.
Diese Immobilien liegt nur 700 m vom Zentrum von Zaton entfernt und die Stadt Zadar ist etwa 12 km entfernt.

AUSSTATUNG:
Konstruktion mit gemauerten Thermoblöcken. Fassadenwärmedämmung 10 cm Styropor. Die Bodenbeläge sind Fliesen und Parkett. Aluminiumfenster mit Dreischichtglas, Moskitonetzen und elektrischen Rollläden und Jalousien. Klimaanlagen gibt es im Wohnzimmer und in jedem Schlafzimmer. Außerdem sind auch Fußbodenheizung mit Wärmepumpe und Klimaanlage (Mitshubishi) installiert. Die Eingangstür einbruchsicher und feuersicher. Im Garten gibt es eine Außendusche.
Für diese Immobilie wird ein Energieausweis A erwartet.

LAGE:
Zaton ist eine kleine Touristenstadt zwischen zwei historischen Städten – Nin (2 km) und Zadar (12 km). Sie stellt eine einzigartige Kombination aus dalmatinischer Architektur, angenehmen mediterranen Klima, erhaltener Natur, reichem kulturellen und historischen Erbe und einem lebhaften touristischen Alltag dar.
Sandstrände im Schatten jahrhundertealter Pinien sind ideal für Familien mit Kindern.
Nin ist ein Ort, der für seine Sandstrände und seinen Heilschlamm bekannt ist und in unmittelbarer Nähe der Nationalparks Paklenica und Kornati liegt.

Zusätzliche Informationen

ID-Nummer S-864
Typ verkauf - wohnung
Untertyp Wohnung im Haus
Staat Hrvatska
Region Zadarska
Stadt Nin
Gemeinde Zaton
Gesamtpreis 360.000 EUR
Preis pro m2 4.711 EUR
Fläche 76.41 m2
Entfernung vom Meer 20 m
Anzahl der Zimmer 3
Anzahl der Badezimmer 1
Etage erdgeschoss
Baujahr 2025
Zustand Neubau,Im Bau
Energieeffizienz A+
Genehmigungen
  • Baugenehmigung
  • Eigentumsbescheinigung
Zusätzlicher Raum
  • Balkon
  • Esszimmer
  • Wohnzimmer
  • Flur
  • Küche
  • Badezimmer
  • Parkplatz
  • Schlafzimmer
  • Terrasse
  • Garten
  • Hof
Infrastruktur
  • Städtische Wasserversorgung
  • Stromanschluss
Beschreibung
  • Strandnähe
  • Meerblick
  • Teilweiser Meerblick
  • Große Terrasse
  • Luxuriös

Wohnung im Haus

76.41 m2
S-864
Preis
360.000 EUR

Interessieren Sie sich für diese Immobilie?

Kontaktieren Sie uns!

+385 23 300 400

info@demare.hr


Öffnungszeiten:
Mo-Fr / 08-16 Uhr und nach Vereinbarung.

NOTE! This site uses cookies and similar technologies.

If you not change browser settings, you agree to it. Learn more

I understand

The use of cookies

We wish this web page to function properly and have the obligation to improve it further. This and our intention to improve your experience, requires for the page to store a small amount of information (cookies) onto your computer. Over 90% of all web sites use cookies. However, in accordance to the EU regulations from March 23rd 2011, we are obliged to ask for your approval before storing cookies onto your disc. By using our web site you agree to use cookies. If you wish to block cookies you can still access the site, but some of its features will not be available to you.

What is a cookie?
A cookie is a piece of information stored onto your computer by the web site you visit. Cookies in principle store your settings, the settings for web site you visit, such as preferred language and address. Later on, when you re-visit the same site, internet browser sends back the cookies belonging to the site. This enables the site to present the information adapted to your needs.

Cookies can store a wide range of information, including personal ones (such as your name of e-mail address). Still, this information can be stored only if you permit it to be stored – web sites cannot approach the information you have not made available and cannot reach other data (files or otherwise) on your computer. The process of data storing and sending cookies to you cannot be seen. However, you can change your settings on internet browser so as to be able to choose whether the request for storing cookies will be approved or refused, to erase stored cookies automatically when closing the internet browser etc.

How to disable the cookies ?
Disabling the cookies you decide whether to let the cookies be stored on your computer or not. Cookies setting can be controller and configures in your web browser. To get the information on cookies settings, select the browser you use. • Chrome • Firefox • Internet Explorer 9 • Opera (English page) • Safari (English page) If you disable the cookies you will not be able to use some of the web site functions.

What are temporary cookies ?
Temporary cookies, or session cookies, are removed from the computer by closing the internet browser. They are used by web-sites to store temporary data, such as settings in an e-buying basket.

What are persistent cookies ?
Persistent or stored cookies remain on the computer after closing the internet browser programme. Web-sites use them to store the data, such as user name and password, so that you do not need to login every time you visit a particular site. Persistent cookies will remain on your computer for days, months, even years.

What are first-party cookies ?
First-party cookies come from the web-site you are currently visiting, and can be persistent or temporary. Web-sites use these cookies to store the data to be used at your next visit to the particular web-site.

Does Cropex.hr use cookies ?
Yes, wishing primarily for out web-sites to provide a more satisfactory user experience for you.

What kind of cookies Cropex.hr uses and why ?

Are there any third-party cookies on our web-site ?
There are some outer services which store limited cookies to the user. These cookies have not been set by this web-site. However, some are used to enable normal functioning of some options, enabling users easier access to the contents. Presently, we enable:

 

Additional information of disabling cookies
There are currently few sites to help you disable storing cookies for various services.

Additional information can be found at the following web-sites;