Wohnungen | S-D-1029 Zadar - Bili brig

Grundinformationen

Zum Verkauf steht ein hochwertiges Neubauprojekt mit Meerblick in exzellenter Lage in Zadar, im Viertel Bilog Brig.
Es handelt sich um ein Mehrfamilienhaus mit insgesamt neun Wohnungen. Das Gebäude verfügt über ein Erdgeschoss, ein erstes und ein zweites Obergeschoss mit Zugang zu Dachterrassen.
Das Dach ist in drei Dachterrassen unterteilt, und jede Wohnung im zweiten Obergeschoss hat eine eigene Dachterrasse.
Zur Beheizung und Kühlung der Wohnungen sind Klimaanlagen in den Wohn- und Schlafzimmern sowie eine elektrische Fußbodenheizung in allen Wohnungen installiert.
Beim Bau und der Ausstattung des Gebäudes wurden moderne, hochwertige Baumaterialien und Geräte verwendet.
Das Gebäude ist in Massivbauweise errichtet und verfügt über eine 10 cm dicke Wärmedämmfassade, hochwertige Aluminiumfenster und -türen mit Dreifachverglasung und Insektenschutzgittern sowie große Glasschiebetüren mit elektrischen Jalousien. Die Eingangstür ist einbruch- und feuerfest.
Die Bauarbeiten haben begonnen. Die Fertigstellung und der Einzug in die Wohnungen sind für Ende 2026 geplant.
 
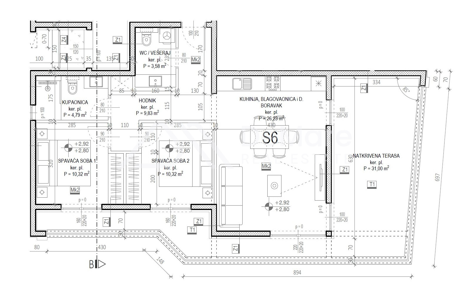
1. OG S6 ≅ Apartment mit 2 Schlafzimmern und Terrasse – MEERBLICK!
Die Wohnung befindet sich im 1. OG und besteht aus:
- Eingangsbereich/Flur (9,83 m²),
- offenem Wohn-/Essbereich mit Küche (26,23 m²),
- Schlafzimmer (10,32 m²),
- Schlafzimmer (10,32 m²),
- Badezimmer (4,79 m²),
- Waschküche/WC (3,58 m²).
Die Wohnfläche beträgt 65,07 m².

Zur Wohnung gehören eine geräumige überdachte Terrasse (31,00 m²), 2 Außenstellplätze (2 x 13,75 m²) und ein Abstellraum (3,47 m²) im Untergeschoss des Gebäudes. Der gesamte berechnete Nutzwert der Wohnung inklusive Inventar beträgt 87,81 m² (Bruttofläche der Wohnung 125,04 m²).
 
Die Wahl zwischen Keramik- und Parkettboden ist je nach Bauphase und in Absprache mit dem Bauträger möglich.
Für weitere Informationen und eine Projektpräsentation kontaktieren Sie uns bitte!
 
De Mare d.o.o.

+385 23 300 400
info@demare.hr
 
 
LAGE:
Die Unterkunft befindet sich in ruhiger Lage, nur 5 Fahrminuten (3 km) vom Meer, Strand und dem Zentrum der Halbinsel Zadar entfernt. In unmittelbarer Nähe finden Sie alle wichtigen Einrichtungen (Supermarkt, Schule, Kindergarten, Apotheke, Arzt- und Zahnarztpraxis, Café und Spielplatz) für ein angenehmes und ruhiges Leben.
Der Flughafen Zadar ist nur 8 km entfernt und bietet hervorragende Verbindungen zu vielen europäischen Städten und Reisezielen.
Der Fährhafen von Zadar, 3 km von der Unterkunft entfernt, bietet Verbindungen zu den meisten Inseln und ist in der Sommersaison ein beliebter Anlaufpunkt für zahlreiche Kreuzfahrtschiffe.

Zusätzliche Informationen

ID-Nummer S-D-1029
Typ verkauf - wohnung
Untertyp Wohnung im Gebäude
Staat Hrvatska
Region Zadarska
Stadt Zadar
Gemeinde Zadar
Stadtteil Bili brig
Gesamtpreis 280.992 EUR
Preis pro m2 3.200 EUR
Fläche 87.81 m2
Entfernung vom Meer 3000 m
Entfernung vom Zentrum 3000 m
Anzahl der Zimmer 3
Anzahl der Badezimmer 1
Obergeschoss 1
Baujahr 2026
Zustand Neubau,Im Bau
Genehmigungen
  • Eigentumsbescheinigung
Zusätzlicher Raum
  • Parkplatz
  • Speisekammer
  • Loggia
  • Terrasse
  • Abstellraum
  • Schlafzimmer
  • Flur
  • Küche
  • Badezimmer
  • Wohnzimmer
  • Esszimmer
  • Toilette
Infrastruktur
  • Städtische Wasserversorgung
  • Stromanschluss
Beschreibung
  • Geschäftsnähe
  • Schulnähe
  • Meerblick
  • Panoramablick
  • Projektdokumentation
  • Große Glasfronten

Wohnung im Gebäude

87.81 m2
S-D-1029
Preis
280.992 EUR

Interessieren Sie sich für diese Immobilie?

Kontaktieren Sie uns!

+385 23 300 400

info@demare.hr


Öffnungszeiten:
Mo-Fr / 08-16 Uhr und nach Vereinbarung.

NOTE! This site uses cookies and similar technologies.

If you not change browser settings, you agree to it. Learn more

I understand

The use of cookies

We wish this web page to function properly and have the obligation to improve it further. This and our intention to improve your experience, requires for the page to store a small amount of information (cookies) onto your computer. Over 90% of all web sites use cookies. However, in accordance to the EU regulations from March 23rd 2011, we are obliged to ask for your approval before storing cookies onto your disc. By using our web site you agree to use cookies. If you wish to block cookies you can still access the site, but some of its features will not be available to you.

What is a cookie?
A cookie is a piece of information stored onto your computer by the web site you visit. Cookies in principle store your settings, the settings for web site you visit, such as preferred language and address. Later on, when you re-visit the same site, internet browser sends back the cookies belonging to the site. This enables the site to present the information adapted to your needs.

Cookies can store a wide range of information, including personal ones (such as your name of e-mail address). Still, this information can be stored only if you permit it to be stored – web sites cannot approach the information you have not made available and cannot reach other data (files or otherwise) on your computer. The process of data storing and sending cookies to you cannot be seen. However, you can change your settings on internet browser so as to be able to choose whether the request for storing cookies will be approved or refused, to erase stored cookies automatically when closing the internet browser etc.

How to disable the cookies ?
Disabling the cookies you decide whether to let the cookies be stored on your computer or not. Cookies setting can be controller and configures in your web browser. To get the information on cookies settings, select the browser you use. • Chrome • Firefox • Internet Explorer 9 • Opera (English page) • Safari (English page) If you disable the cookies you will not be able to use some of the web site functions.

What are temporary cookies ?
Temporary cookies, or session cookies, are removed from the computer by closing the internet browser. They are used by web-sites to store temporary data, such as settings in an e-buying basket.

What are persistent cookies ?
Persistent or stored cookies remain on the computer after closing the internet browser programme. Web-sites use them to store the data, such as user name and password, so that you do not need to login every time you visit a particular site. Persistent cookies will remain on your computer for days, months, even years.

What are first-party cookies ?
First-party cookies come from the web-site you are currently visiting, and can be persistent or temporary. Web-sites use these cookies to store the data to be used at your next visit to the particular web-site.

Does Cropex.hr use cookies ?
Yes, wishing primarily for out web-sites to provide a more satisfactory user experience for you.

What kind of cookies Cropex.hr uses and why ?

Are there any third-party cookies on our web-site ?
There are some outer services which store limited cookies to the user. These cookies have not been set by this web-site. However, some are used to enable normal functioning of some options, enabling users easier access to the contents. Presently, we enable:

 

Additional information of disabling cookies
There are currently few sites to help you disable storing cookies for various services.

Additional information can be found at the following web-sites;