Apartments | A-I-293 Nin -

Basic information

A new project of a new building with an elevator is for sale, in an attractive location near a sandy beach, just 80 m from the sea in Nin - near Zadar.
This is a project of an apartment building consisting of a total of 10 apartments. The building has 3 floors connected by an elevator; ground floor, first and second floor, and each floor has 3 apartments.
In the building's courtyard there are 3 swimming pools belonging to the apartments on the ground floor, and above the second floor there are walk-through roof terraces belonging to the apartments on the 2nd floor.
Construction begins in 02/2026, and the expected completion of construction works and moving into the apartments is planned by 06/2027.
 
BUILDING FEATURES:
- The building is constructed of reinforced concrete
- Thermal facade - 10 cm polystyrene
- The building has a built-in chimney
- Elevator connecting all floors / from the ground floor to the roof terrace
- Swimming pools for apartments on the ground floor
- Underfloor heating in bathrooms
- High-quality PVC joinery with electrically operated ALU roller shutters and mosquito nets
- Air conditioning units in all rooms
- Fire / Burglar-proof entrance door
- Video intercom at the entrance to the building
 
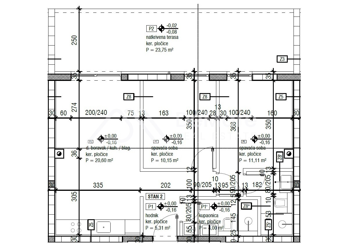
Ground floor S2 - Apartment with 2 bedrooms and a swimming pool
The APARTMENT is located on the ground floor of the building and consists of:
- hallway / 5.31 m2
- living room with kitchen and dining room / 20.60 m2
- 2 bedrooms / 10.15 m2 and 11.11 m2
- 2 bathrooms / 4.00 m2 and 3.73 m2
- covered terrace / 23.75 m2 
In front of the apartment there is a garden with a swimming pool and a sunbathing area, as well as 2 parking spaces (2 x 12.50 m2) in the building's yard.
The interior living space of the apartment is 54.90 m2, while the total calculated useful value of the area with all accessories is 76.27 m2.
 
THE ADVANTAGE when buying this property is that the seller is a legal entity in the VAT system, so the buyer DOES NOT PAY real estate tax!
 
LOCATION:
Nin is a small town located about 15 km northwest of Zadar. The center of the ancient city is an island, 500 m in diameter, connected to the mainland by two bridges, formed on the sandbank of the former mouth of the Miljašić Jaruga river into the sea. On the north side it is surrounded by a sandbar and the weekend village of Ždrijac, on the east side there is a salt pan and on the south and west side there is the newer part of the town itself. Nin is spread out in several formed zones: the historic island, the weekend village of Ždrijac, the new part of Nin, Bilotinjak and Ninske Vodice.

Extra information

Code 5235-1
Code A-I-293
Type sale - flat
Subtype Holiday apartment
Country Hrvatska
County Zadarska
City Nin
City area Nin
Total price 359.000 EUR
Price per m2 4.707 EUR
Size 76.27 m2
Sea distance 80 m
No. of rooms 3
No. of bathrooms 2
Floor ground floor
Floor
Built 2027
Conditions New construction,Under construction
Permits
  • Title deed
Extra Spaces
  • Bedroom
  • Parking
  • Bathroom
  • Kitchen
  • Hall
  • Dining room
  • Living room
  • Garden
  • Terrace
Infrastructure
  • Waterworks
  • Electricity
Description
  • Close to the beach
  • Quiet area
  • Project documentation
  • Well-maintained yard
  • Large terrace
  • Large glass walls

Holiday apartment

76.27 m2
A-I-293
Price
359.000 EUR

Are you interested in this property?

Contact us!

+385 23 300 400

info@demare.hr


Working hours:
Mon-Fri 8am-4pm and on request.

NOTE! This site uses cookies and similar technologies.

If you not change browser settings, you agree to it. Learn more

I understand

The use of cookies

We wish this web page to function properly and have the obligation to improve it further. This and our intention to improve your experience, requires for the page to store a small amount of information (cookies) onto your computer. Over 90% of all web sites use cookies. However, in accordance to the EU regulations from March 23rd 2011, we are obliged to ask for your approval before storing cookies onto your disc. By using our web site you agree to use cookies. If you wish to block cookies you can still access the site, but some of its features will not be available to you.

What is a cookie?
A cookie is a piece of information stored onto your computer by the web site you visit. Cookies in principle store your settings, the settings for web site you visit, such as preferred language and address. Later on, when you re-visit the same site, internet browser sends back the cookies belonging to the site. This enables the site to present the information adapted to your needs.

Cookies can store a wide range of information, including personal ones (such as your name of e-mail address). Still, this information can be stored only if you permit it to be stored – web sites cannot approach the information you have not made available and cannot reach other data (files or otherwise) on your computer. The process of data storing and sending cookies to you cannot be seen. However, you can change your settings on internet browser so as to be able to choose whether the request for storing cookies will be approved or refused, to erase stored cookies automatically when closing the internet browser etc.

How to disable the cookies ?
Disabling the cookies you decide whether to let the cookies be stored on your computer or not. Cookies setting can be controller and configures in your web browser. To get the information on cookies settings, select the browser you use. • Chrome • Firefox • Internet Explorer 9 • Opera (English page) • Safari (English page) If you disable the cookies you will not be able to use some of the web site functions.

What are temporary cookies ?
Temporary cookies, or session cookies, are removed from the computer by closing the internet browser. They are used by web-sites to store temporary data, such as settings in an e-buying basket.

What are persistent cookies ?
Persistent or stored cookies remain on the computer after closing the internet browser programme. Web-sites use them to store the data, such as user name and password, so that you do not need to login every time you visit a particular site. Persistent cookies will remain on your computer for days, months, even years.

What are first-party cookies ?
First-party cookies come from the web-site you are currently visiting, and can be persistent or temporary. Web-sites use these cookies to store the data to be used at your next visit to the particular web-site.

Does Cropex.hr use cookies ?
Yes, wishing primarily for out web-sites to provide a more satisfactory user experience for you.

What kind of cookies Cropex.hr uses and why ?

Are there any third-party cookies on our web-site ?
There are some outer services which store limited cookies to the user. These cookies have not been set by this web-site. However, some are used to enable normal functioning of some options, enabling users easier access to the contents. Presently, we enable:

 

Additional information of disabling cookies
There are currently few sites to help you disable storing cookies for various services.

Additional information can be found at the following web-sites;