Apartments | A-I-321 Nin -

Basic information

A luxurious apartment in a NEW BUILDING with a total of 4 residential units is for sale, in an exceptional location in Zaton - 1st row to the sea!
This modern, urban villa consists of a ground floor, first and second floors, and a spacious roof terrace with a panoramic view of the sea and islands, and all floors - from the ground floor to the roof terrace - are connected by an elevator.
The building was built to the highest construction standards, construction works are underway, and completion of works and occupancy is expected by summer 2026.
Carefully designed spaces offer a flawless blend of elegance and comfort, with spacious interiors and enchanting panoramic views - first row to the sea and the beach!
Immerse yourself in the charms of coastal life in its most modern version!
 
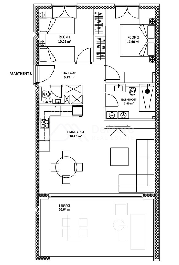
1ST FLOOR - S3 - DELUXE SUITE WITH LOGGIA consists of:
- Hallway / 6.50 m2,
- Living room with kitchen and dining room / 30.30 m2,
- Two bedrooms / 10.00 m2 / 12.50 m2,
- Bathroom / 5.50 m2,
- Toilet / 1.50 m2,
- Loggia / 20.60 m2
This comfortable, luxurious apartment extends over half of the first floor of the building, and large glass walls divide the dining room and living room from a spacious covered terrace overlooking the sea, where a massage pool can be placed, as well as furniture for dining and outdoor living.
The apartment also has two outdoor parking spaces (16.00 and 16.00 m2).
The internal living area is 66.30 m2, and the total calculated net value of the usable area of ​​the apartment with all accessories is 88.15 m2.
 
 
HIGH-QUALITY EQUIPMENT AND FACILITIES:
- Elevator brand OTIS / connects all floors - with direct access from the ground floor to the roof terrace,
- Underfloor heating / heat pump brand Valliant or Mitsubishi - possibility of remote Wi-Fi control,
- Built-in air conditioners brand Mitsubishi - cooling / heating - possibility of remote Wi-Fi control,
- Large-sized Italian tiles for the bathroom, renowned manufacturer (240 cm x 120 cm)
- Sound insulation installed between the apartments - on the floor slab - for improved privacy and comfort
- Aluminum joinery - aluminum frames from the top German manufacturer Schüco,
- Large glass sliding walls, from ceiling to floor with high-quality IZO glass with solar control / Press Glass
- Aluminum roller shutters with electric drive,
- Built-in mosquito nets on all windows and balcony doors,
- Luxurious room doors without visible door frames,
- Entrance security / fire doors with multiple locking using the Kolnoa code system,
- Fittings from the German manufacturer Hansgrohe,
- Bathroom bathtubs at floor level from renowned manufacturers,
- Bathroom sanitary ware from Villery & Boch,
- Parking spaces equipped with chargers for electric vehicles.
The seller is a legal entity, so the buyer DOES NOT PAY real estate tax.
Experience Mediterranean life in a new way and enjoy a luxurious property overlooking the clear Adriatic Sea from your spacious private terrace.
Discover your exclusive Dalmatian retreat in a luxury apartment!!
For a presentation and tour of the apartment, feel free to contact us!
De Mare d.o.o.
+385 23 300 400
info@demare.hr
 
LOCATION:
The town of Zaton is approx. 14 km from Zadar, 2.5 km from Nin and its beautiful famous sandy beaches, the island of Vir 8 km and has very good transport connections with all surrounding places.
It is an ideal place for a peaceful family vacation, and its gentle sandy and pebble beaches with clear sea, which stretch for 4 km of coastline, are particularly attractive and safe for children. Near the town itself, there is also the Zaton Family Resort, which offers a huge swimming pool complex and many other family activities and facilities in the immediate vicinity.
Zaton offers its visitors a large number of modern elite villas, apartments and rooms for accommodation, and shops, pharmacies, restaurants, cafe bars are located in the town itself and along the coast. Zaton is a sought-after tourist destination because it is a real oasis of peace in a beautiful Mediterranean environment.
Zadar airport and ferry port, as well as the entrance to the A1 motorway, are approximately 21 km or approx. 30 minutes drive from Zaton.

Extra information

Code 5334-1
Code A-I-321
Type sale - flat
Subtype Holiday apartment
Country Hrvatska
County Zadarska
City Nin
City area Zaton
Total price 685.000 EUR
Price per m2 7.771 EUR
Size 88.15 m2
Orientation Southwest
Sea distance 20 m
Distance to center 600 m
No. of rooms 3
No. of bathrooms 1
Floor 1
Built 2026
Conditions New construction,Under construction
Permits
  • Title deed
Extra Spaces
Parking
Infrastructure
  • Waterworks
  • Electricity
Description
  • Close to the beach
  • Quiet area
  • Sea views
  • Undisrupted sea views
  • Access - paved
  • Project documentation
  • Well-maintained yard
  • Large terrace
  • Large glass walls
  • Separate entrance
  • Luxury

Holiday apartment

88.15 m2
A-I-321
Price
685.000 EUR

Are you interested in this property?

Contact us!

+385 23 300 400

info@demare.hr


Working hours:
Mon-Fri 8am-4pm and on request.

NOTE! This site uses cookies and similar technologies.

If you not change browser settings, you agree to it. Learn more

I understand

The use of cookies

We wish this web page to function properly and have the obligation to improve it further. This and our intention to improve your experience, requires for the page to store a small amount of information (cookies) onto your computer. Over 90% of all web sites use cookies. However, in accordance to the EU regulations from March 23rd 2011, we are obliged to ask for your approval before storing cookies onto your disc. By using our web site you agree to use cookies. If you wish to block cookies you can still access the site, but some of its features will not be available to you.

What is a cookie?
A cookie is a piece of information stored onto your computer by the web site you visit. Cookies in principle store your settings, the settings for web site you visit, such as preferred language and address. Later on, when you re-visit the same site, internet browser sends back the cookies belonging to the site. This enables the site to present the information adapted to your needs.

Cookies can store a wide range of information, including personal ones (such as your name of e-mail address). Still, this information can be stored only if you permit it to be stored – web sites cannot approach the information you have not made available and cannot reach other data (files or otherwise) on your computer. The process of data storing and sending cookies to you cannot be seen. However, you can change your settings on internet browser so as to be able to choose whether the request for storing cookies will be approved or refused, to erase stored cookies automatically when closing the internet browser etc.

How to disable the cookies ?
Disabling the cookies you decide whether to let the cookies be stored on your computer or not. Cookies setting can be controller and configures in your web browser. To get the information on cookies settings, select the browser you use. • Chrome • Firefox • Internet Explorer 9 • Opera (English page) • Safari (English page) If you disable the cookies you will not be able to use some of the web site functions.

What are temporary cookies ?
Temporary cookies, or session cookies, are removed from the computer by closing the internet browser. They are used by web-sites to store temporary data, such as settings in an e-buying basket.

What are persistent cookies ?
Persistent or stored cookies remain on the computer after closing the internet browser programme. Web-sites use them to store the data, such as user name and password, so that you do not need to login every time you visit a particular site. Persistent cookies will remain on your computer for days, months, even years.

What are first-party cookies ?
First-party cookies come from the web-site you are currently visiting, and can be persistent or temporary. Web-sites use these cookies to store the data to be used at your next visit to the particular web-site.

Does Cropex.hr use cookies ?
Yes, wishing primarily for out web-sites to provide a more satisfactory user experience for you.

What kind of cookies Cropex.hr uses and why ?

Are there any third-party cookies on our web-site ?
There are some outer services which store limited cookies to the user. These cookies have not been set by this web-site. However, some are used to enable normal functioning of some options, enabling users easier access to the contents. Presently, we enable:

 

Additional information of disabling cookies
There are currently few sites to help you disable storing cookies for various services.

Additional information can be found at the following web-sites;