Apartments | A-273 Privlaka -

Basic information

The new project of a luxurious new building in an exceptional location, 150 m from the sea, in the immediate vicinity of a beautiful beach, offers top quality apartments that will meet the criteria of even the most demanding clients.
All apartments have a beautiful panoramic view of the sea and nearby islands.
Superior construction with quality materials; high-quality carpentry, top-quality ceramics and parquet floors, underfloor heating, air conditioning in all rooms, thermal facade, flat roof with roof terraces.

The building is oriented southwest.

The planned construction completion date is the end of the year 2025.


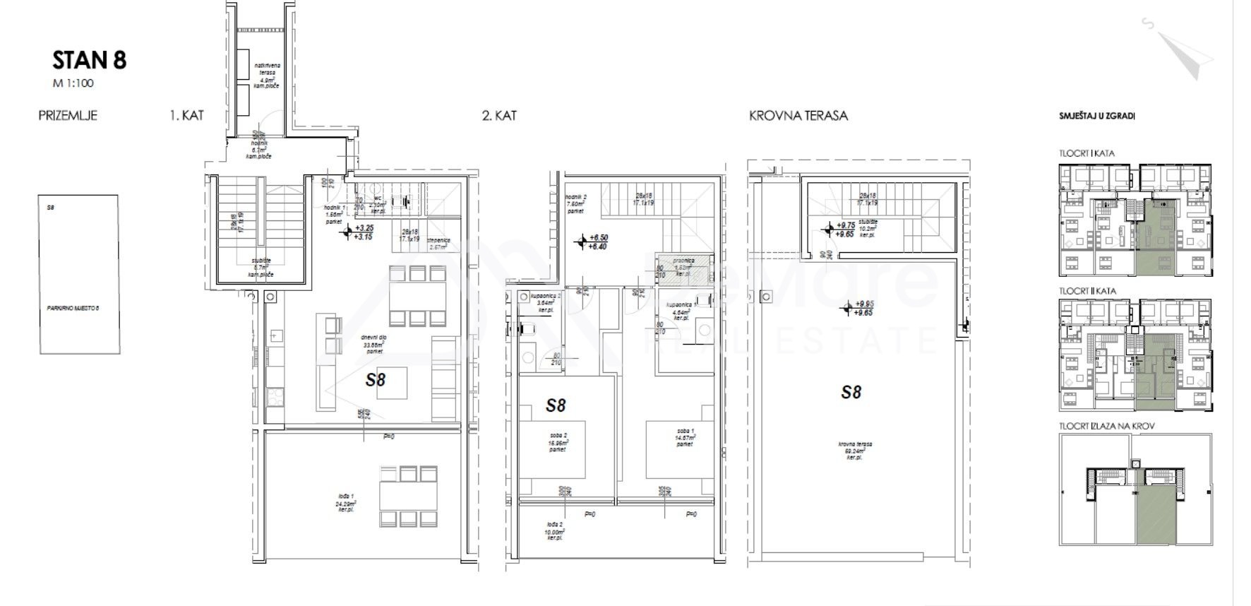
≈ PENTHOUSE 8 - 1ST FLOOR and 2ND FLOOR + ROOF TERRACE
A spacious two-story PENTHOUSE apartment 131 m2, with a roof terrace, is spread over the 1.st and 2.nd floor of the building, and consists of:
1. st FLOOR »
- hallway / 1.56 m2,
- kitchen+dining room+living room / 33.88 m2,
- loggia 1 - with sea view / 24.29 m2
- stairs / 2.57 m2
- toilet / 2.10 m2

2.nd floor »
- hallway 2 / 7.50 m2
- laundry / 1.52 m2
- 2 bedrooms / 14.67 m2 + 15.95 m2
- 2 bathrooms / 4.64 m2 + 3.64 m2
- loggia 2 - sea view / 10.00 m2

The apartment has a beautiful roof terrace of 59 m2 with an open, panoramic view of the sea and the sunset, as well as a parking space in the yard of the building of 12.50 m2.
≅ The total area of the apartment is 194 m2, while the calculation value of the usable surface of this apartment is 131 m2.


The seller is a company, so the buyer DOES NOT PAY real estate sales tax.
The documentation is in order.

Feel free to contact us for any additional information!

De Mare nekretnine d.o.o.
+385 23 300 400
info@demare.hr


LOCATION:
This facility is located in an exclusive location with a view of the sea and islands, only 150 m from the sea and the beach.
An ideal location for rest and relaxation with a view of the beautiful sunset. There is also a pier nearby where there is a possibility of mooring for boats.
Privlaka is a small fishing and tourist town located on a spacious sandy peninsula near Zadar (21 km) and the royal town of Nin (8 km). The distance to the island of Vir is 7 km, and to Zadar airport is 33 km. Clean and clear sea and shallow sandy coves make this location ideal for life and family tourism.

Extra information

Code 4184-1
Code A-273
Type sale - flat
Subtype Holiday apartment
Country Hrvatska
County Zadarska
City Privlaka
City area Privlaka
Total price 458.700 EUR
Price per m2 3.502 EUR
Size 131 m2
Orientation Southwest
Sea distance 150 m
No. of rooms 3
No. of bathrooms 2
Floor first,second,penthouse
Floor 1
Built 2025
Conditions New construction,Under construction
Permits
  • Title deed
Extra Spaces
  • Dining room
  • Living room
  • Hall
  • Kitchen
  • Bathroom
  • Loggia
  • Parking
  • Bedroom
  • Terrace
  • Toilet
Infrastructure
Electricity
Description
  • Close to the beach
  • Quiet area
  • Sea views
  • Partial sea views
  • Undisrupted sea views
  • Sea view panoramic
  • Panoramic view
  • Project documentation
  • Large terrace
  • Luxury

Holiday apartment

131 m2
A-273
Price
458.700 EUR

Are you interested in this property?

Contact us!

+385 23 300 400

info@demare.hr


Working hours:
Mon-Fri 8am-4pm and on request.

NOTE! This site uses cookies and similar technologies.

If you not change browser settings, you agree to it. Learn more

I understand

The use of cookies

We wish this web page to function properly and have the obligation to improve it further. This and our intention to improve your experience, requires for the page to store a small amount of information (cookies) onto your computer. Over 90% of all web sites use cookies. However, in accordance to the EU regulations from March 23rd 2011, we are obliged to ask for your approval before storing cookies onto your disc. By using our web site you agree to use cookies. If you wish to block cookies you can still access the site, but some of its features will not be available to you.

What is a cookie?
A cookie is a piece of information stored onto your computer by the web site you visit. Cookies in principle store your settings, the settings for web site you visit, such as preferred language and address. Later on, when you re-visit the same site, internet browser sends back the cookies belonging to the site. This enables the site to present the information adapted to your needs.

Cookies can store a wide range of information, including personal ones (such as your name of e-mail address). Still, this information can be stored only if you permit it to be stored – web sites cannot approach the information you have not made available and cannot reach other data (files or otherwise) on your computer. The process of data storing and sending cookies to you cannot be seen. However, you can change your settings on internet browser so as to be able to choose whether the request for storing cookies will be approved or refused, to erase stored cookies automatically when closing the internet browser etc.

How to disable the cookies ?
Disabling the cookies you decide whether to let the cookies be stored on your computer or not. Cookies setting can be controller and configures in your web browser. To get the information on cookies settings, select the browser you use. • Chrome • Firefox • Internet Explorer 9 • Opera (English page) • Safari (English page) If you disable the cookies you will not be able to use some of the web site functions.

What are temporary cookies ?
Temporary cookies, or session cookies, are removed from the computer by closing the internet browser. They are used by web-sites to store temporary data, such as settings in an e-buying basket.

What are persistent cookies ?
Persistent or stored cookies remain on the computer after closing the internet browser programme. Web-sites use them to store the data, such as user name and password, so that you do not need to login every time you visit a particular site. Persistent cookies will remain on your computer for days, months, even years.

What are first-party cookies ?
First-party cookies come from the web-site you are currently visiting, and can be persistent or temporary. Web-sites use these cookies to store the data to be used at your next visit to the particular web-site.

Does Cropex.hr use cookies ?
Yes, wishing primarily for out web-sites to provide a more satisfactory user experience for you.

What kind of cookies Cropex.hr uses and why ?

Are there any third-party cookies on our web-site ?
There are some outer services which store limited cookies to the user. These cookies have not been set by this web-site. However, some are used to enable normal functioning of some options, enabling users easier access to the contents. Presently, we enable:

 

Additional information of disabling cookies
There are currently few sites to help you disable storing cookies for various services.

Additional information can be found at the following web-sites;