Apartments | A-D-303 Privlaka -

Basic information

For sale is an exceptionally high-quality, modern new building project with a sea view in a prime location - just 200 m from the sea - in Privlaka - near Zadar.
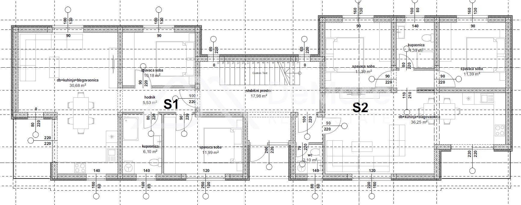
This is a multi-apartment building project consisting of a total of 6 apartments. The building has 3 floors (ground floor, first and second floor) with access to roof terraces.
The roof is divided into two roof terraces, and each apartment on the second floor has a separate roof terrace.
For heating and cooling the apartments, air conditioning units have been installed in all rooms, and underfloor heating has been installed in all bathrooms.
The building is currently under construction, and completion of the works is expected by 10/2025.
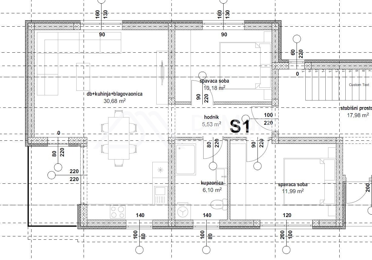
Ground floor apartment with garden
The apartment is located on the ground floor of the building, and consists of:
- Entrance area / hallway -4.94 m2,
- Open space living room with kitchen and dining room / 30.68 m2,
- 2 bedrooms / 10.18 m2 and 11.99 m2,
- Bathroom / 6.10 m2,
The interior living space of the apartment occupies 63.89 m2.
The apartment also has a spacious garden (129.30 m3), a covered terrace (5.89 m2), as well as 2 outdoor parking spaces (2x 12.50 m2).
The total calculated usable area of ​​the apartment is approx. 84.77 m2.

LOCATION:
The facility is located in Privlaka in a quiet location 200 m from the sea and beach - ideal for a pleasant and peaceful life or vacation.
Privlaka is a small fishing and tourist town located on a spacious sandy peninsula near Zadar (21 km) and the royal town of Nin (8 km). The island of Vir is 7 km away, and Zadar airport is 33 km away. The clean and clear sea and shallow sandy bays make this location ideal for life and family tourism.

Extra information

Code 4963-1
Code A-D-303
Type sale - flat
Subtype Holiday apartment
Country Hrvatska
County Zadarska
City Privlaka
City area Privlaka
Total price 279.741 EUR
Price per m2 3.300 EUR
Size 84.77 m2
No. of rooms 3
No. of bathrooms 1
Floor ground floor
Floor
Built 2025
Conditions New construction,Under construction
Permits
  • Title deed
Extra Spaces
  • Dining room
  • Living room
  • Hall
  • Kitchen
  • Bathroom
  • Parking
  • Bedroom
  • Terrace
  • Garden
Infrastructure
  • Waterworks
  • Electricity
Description
  • Close to the beach
  • Quiet area
  • Project documentation
  • Luxury

Holiday apartment

84.77 m2
A-D-303
Price
279.741 EUR

Are you interested in this property?

Contact us!

+385 23 300 400

info@demare.hr


Working hours:
Mon-Fri 8am-4pm and on request.

NOTE! This site uses cookies and similar technologies.

If you not change browser settings, you agree to it. Learn more

I understand

The use of cookies

We wish this web page to function properly and have the obligation to improve it further. This and our intention to improve your experience, requires for the page to store a small amount of information (cookies) onto your computer. Over 90% of all web sites use cookies. However, in accordance to the EU regulations from March 23rd 2011, we are obliged to ask for your approval before storing cookies onto your disc. By using our web site you agree to use cookies. If you wish to block cookies you can still access the site, but some of its features will not be available to you.

What is a cookie?
A cookie is a piece of information stored onto your computer by the web site you visit. Cookies in principle store your settings, the settings for web site you visit, such as preferred language and address. Later on, when you re-visit the same site, internet browser sends back the cookies belonging to the site. This enables the site to present the information adapted to your needs.

Cookies can store a wide range of information, including personal ones (such as your name of e-mail address). Still, this information can be stored only if you permit it to be stored – web sites cannot approach the information you have not made available and cannot reach other data (files or otherwise) on your computer. The process of data storing and sending cookies to you cannot be seen. However, you can change your settings on internet browser so as to be able to choose whether the request for storing cookies will be approved or refused, to erase stored cookies automatically when closing the internet browser etc.

How to disable the cookies ?
Disabling the cookies you decide whether to let the cookies be stored on your computer or not. Cookies setting can be controller and configures in your web browser. To get the information on cookies settings, select the browser you use. • Chrome • Firefox • Internet Explorer 9 • Opera (English page) • Safari (English page) If you disable the cookies you will not be able to use some of the web site functions.

What are temporary cookies ?
Temporary cookies, or session cookies, are removed from the computer by closing the internet browser. They are used by web-sites to store temporary data, such as settings in an e-buying basket.

What are persistent cookies ?
Persistent or stored cookies remain on the computer after closing the internet browser programme. Web-sites use them to store the data, such as user name and password, so that you do not need to login every time you visit a particular site. Persistent cookies will remain on your computer for days, months, even years.

What are first-party cookies ?
First-party cookies come from the web-site you are currently visiting, and can be persistent or temporary. Web-sites use these cookies to store the data to be used at your next visit to the particular web-site.

Does Cropex.hr use cookies ?
Yes, wishing primarily for out web-sites to provide a more satisfactory user experience for you.

What kind of cookies Cropex.hr uses and why ?

Are there any third-party cookies on our web-site ?
There are some outer services which store limited cookies to the user. These cookies have not been set by this web-site. However, some are used to enable normal functioning of some options, enabling users easier access to the contents. Presently, we enable:

 

Additional information of disabling cookies
There are currently few sites to help you disable storing cookies for various services.

Additional information can be found at the following web-sites;