Apartments | A-I-299 Sveti Filip i Jakov -

Basic information

A modern apartment for sale in a NEWLY BUILT / building with a total of 6 residential units, in a prime location near the sea in Sv. Petar na moru. The building consists of a ground floor, first and second floors, and has a sea view, and the distance to the beach is only 150 m!!
The property offers an incredible view of the island of Galešnjak, also known as the "Island of Love", located in the Zadar archipelago, and the crystal clear sea. Its romantic heart shape and untouched nature attract adventurers and lovers of wild landscapes, offering an unforgettable experience.
The building is currently under construction, completion of works is planned by 05/2026, and obtaining a use permit is expected by 09/2026.
 
 
BUILDING CHARACTERISTICS:
- Reinforced - concrete construction,
- Facade / thermal insulation 10 cm,
- Knauf partitions / double cladding,
- PVC joinery / triple glazing - lift-sliding walls,
- Roller shutters with built-in electric lifts and mosquito nets,
- Floor el. heating installed in the bathroom and living room - WIFI control option
- Cooling / Heating via Multi-split air conditioner - WIFI control option - in the living room and bedrooms
 
 
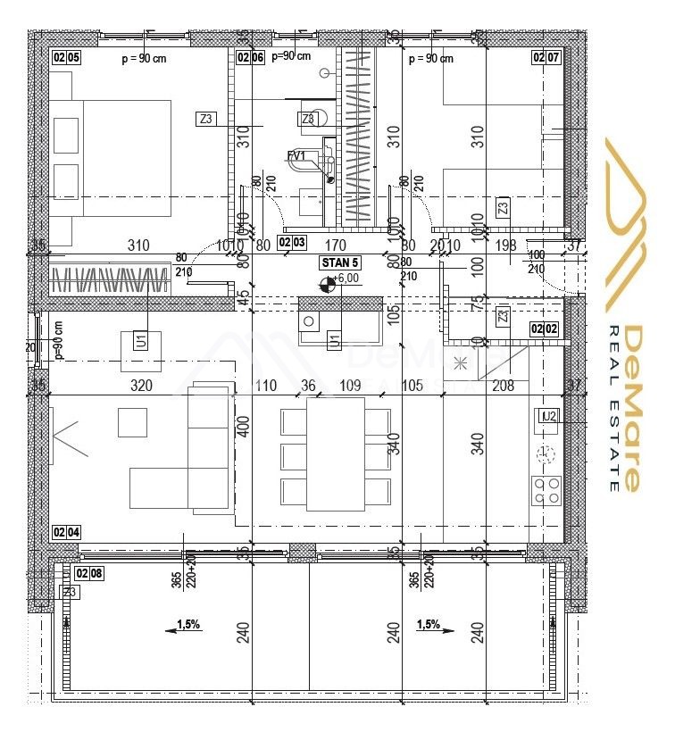
PENTHOUSE S5 apartment on the 2ND FLOOR with two bedrooms
The apartment is located on the second floor and consists of:
≈ hallway / 3.70 m2,
≈ 2 bedrooms / 13.33 m2 and 11.93 m2,
≈ bathroom / 5.08 m2,
≈ entrance hall, / 3.95 m2,
≈ living room with kitchen and dining room / 34.21 m2,
≈ covered terrace / 18.70 m2.
The interior living space occupies a total of 72.20 m2.
An internal staircase leads to a spacious roof terrace / 94.68 m2, which offers a panoramic view of the sea and islands.
The apartment also has one outdoor parking space / 12.50 m2 in the building's yard.
The total calculated useful value of the area of ​​the apartment with its belongings is 107.72 m2.
 
There is a possibility of choosing ceramics and parquet from the three offered variants, according to the agreement with the investor and depending on the construction phases.
Payment of the first part is 10% of the property price (down payment), and for the remaining amount there is a possibility of financing with a housing loan.
The buyer pays an agency commission in the amount of 1,5 % + VAT.
The seller is a legal entity in the VAT system, so the buyer DOES NOT PAY real estate transfer tax.
For all additional questions and information, please feel free to call us!
De Mare d.o.o.
Tel: +385 23 300 400
Mail: info@demare.hr
 
LOCATION:
Sv. PETAR NA MORU is located about 15 km southeast of the city of Zadar and only 10 km northwest of the old town of Biograd na moru. The distance to Zemunik airport is 9 km.
This small town offers everything you need for everyday life and for an ideal vacation. Numerous restaurants, cafes and shops will make your stay in this place even more relaxing. Sv. Petar is a place known for its beautiful pebble beaches, and is close to the town of Biograd na moru, which offers numerous additional tourist facilities.

Extra information

Code 4922-1
Code A-I-299
Type sale - flat
Subtype Holiday apartment
Country Hrvatska
County Zadarska
City Sveti Filip i Jakov
City area Sveti Petar na Moru
Total price 359.784 EUR
Price per m2 3.340 EUR
Size 107.72 m2
Sea distance 150 m
No. of rooms 3
No. of bathrooms 1
Floor second,penthouse
Floor 2
Built 2025
Conditions New construction,Under construction
Permits
  • Building permit
  • Title deed
Extra Spaces
  • Dining room
  • Living room
  • Hall
  • Kitchen
  • Bathroom
  • Parking
  • Bedroom
  • Terrace
Infrastructure
  • Waterworks
  • Electricity
Description
  • Close to the beach
  • Quiet area
  • Sea views
  • Panoramic view
  • Project documentation
  • Large terrace
  • Large glass walls
  • Luxury

Holiday apartment

107.72 m2
A-I-299
Price
359.784 EUR

Are you interested in this property?

Contact us!

+385 23 300 400

info@demare.hr


Working hours:
Mon-Fri 8am-4pm and on request.

NOTE! This site uses cookies and similar technologies.

If you not change browser settings, you agree to it. Learn more

I understand

The use of cookies

We wish this web page to function properly and have the obligation to improve it further. This and our intention to improve your experience, requires for the page to store a small amount of information (cookies) onto your computer. Over 90% of all web sites use cookies. However, in accordance to the EU regulations from March 23rd 2011, we are obliged to ask for your approval before storing cookies onto your disc. By using our web site you agree to use cookies. If you wish to block cookies you can still access the site, but some of its features will not be available to you.

What is a cookie?
A cookie is a piece of information stored onto your computer by the web site you visit. Cookies in principle store your settings, the settings for web site you visit, such as preferred language and address. Later on, when you re-visit the same site, internet browser sends back the cookies belonging to the site. This enables the site to present the information adapted to your needs.

Cookies can store a wide range of information, including personal ones (such as your name of e-mail address). Still, this information can be stored only if you permit it to be stored – web sites cannot approach the information you have not made available and cannot reach other data (files or otherwise) on your computer. The process of data storing and sending cookies to you cannot be seen. However, you can change your settings on internet browser so as to be able to choose whether the request for storing cookies will be approved or refused, to erase stored cookies automatically when closing the internet browser etc.

How to disable the cookies ?
Disabling the cookies you decide whether to let the cookies be stored on your computer or not. Cookies setting can be controller and configures in your web browser. To get the information on cookies settings, select the browser you use. • Chrome • Firefox • Internet Explorer 9 • Opera (English page) • Safari (English page) If you disable the cookies you will not be able to use some of the web site functions.

What are temporary cookies ?
Temporary cookies, or session cookies, are removed from the computer by closing the internet browser. They are used by web-sites to store temporary data, such as settings in an e-buying basket.

What are persistent cookies ?
Persistent or stored cookies remain on the computer after closing the internet browser programme. Web-sites use them to store the data, such as user name and password, so that you do not need to login every time you visit a particular site. Persistent cookies will remain on your computer for days, months, even years.

What are first-party cookies ?
First-party cookies come from the web-site you are currently visiting, and can be persistent or temporary. Web-sites use these cookies to store the data to be used at your next visit to the particular web-site.

Does Cropex.hr use cookies ?
Yes, wishing primarily for out web-sites to provide a more satisfactory user experience for you.

What kind of cookies Cropex.hr uses and why ?

Are there any third-party cookies on our web-site ?
There are some outer services which store limited cookies to the user. These cookies have not been set by this web-site. However, some are used to enable normal functioning of some options, enabling users easier access to the contents. Presently, we enable:

 

Additional information of disabling cookies
There are currently few sites to help you disable storing cookies for various services.

Additional information can be found at the following web-sites;