Apartments | A-D-319 Sveti Filip i Jakov -

Basic information

A luxurious and modern apartment for sale in NOVOGRADNJA with a view of the sea / a building with a total of 9 residential units, in a quiet location in Sv Filip i Jakov. The building consists of the ground floor, first and second floors, and roof terraces with a beautiful view of the sea, and the distance from the building to the sea and the beach is 600 m!!
The building is built of high quality and has an installed LIFT, it is built with concrete construction, thermal insulation is 10 cm styrofoam. The floors are covered with high-quality parquet, and the carpentry is made of three-layer PVC with IZO glass. electric blinds and mosquito nets. Floor heating will be implemented in the entire apartment. Air conditioning devices are monitored in the living room and in the bedrooms. The entrance door is fireproof and burglarproof.
 
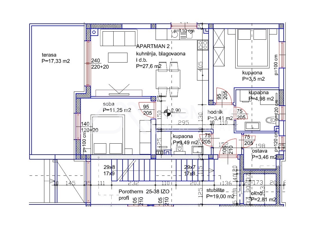
A3 - APARTMENT on the 2nd floor with panoramic sea views!!
The apartment is located on the 2nd floor and consists of:
-- Hallway / 3.41 m2,
-- Open space living room with kitchen and dining room / 27.60 m2,
-- Bedrooms / 11.25 m2,
-- Bedrooms / 11.91 m2
-- Bathrooms / 4.98 m2,
-- Bathrooms / 3.49 m2,
-- Storage / 3.46 m2,
-- Covered terrace / 17.33 m2 with a view of the sea and islands!
The interior living space occupies 66.10 m2.
The apartment has a beautiful roof terrace (67.40 m2) with a sea view, one outdoor parking space, and the total calculated useful value of all surfaces with accessories is 94.36 m2.
The seller is a legal entity, so the buyer DOES NOT PAY real estate tax.
Completion of works and move-in is planned by 07/2026. year.
For a tour of the property and all additional information, please contact us!
De Mare d.o.o.
Tel: +385 23 300 400
Mail: info@demare.hr
 
LOCATION:
This property is 600 m from the sea and the center of the settlement of Sv. Filip i Jakov, which has all the amenities needed for everyday life.
Sv. Filip i Jakov is 25 km southeast of the city of Zadar and only 3 km northwest of the old town of Biograd na moru. The distance to Zmunik airport is 15 km.
This small town offers you everything you need for everyday life and for an ideal vacation. Numerous restaurants, cafes and shops will make your stay in this place even more relaxing. Sveti Filip i Jakov is known for its beautiful pebble and sandy beaches, and is directly connected to the town of Biograd, which offers numerous additional amenities.

Extra information

Code 5292-1
Code A-D-319
Type sale - flat
Subtype Holiday apartment
Country Hrvatska
County Zadarska
City Sveti Filip i Jakov
City area Sveti Filip i Jakov
Total price 283.250 EUR
Price per m2 3.654 EUR
Size 77.51 m2
Sea distance 600 m
No. of rooms 3
No. of bathrooms 2
Floor 1
Built 2026
Conditions New construction,Under construction
Extra Spaces
  • Dining room
  • Living room
  • Hall
  • Kitchen
  • Bathroom
  • Pantry
  • Parking
  • Bedroom
  • Terrace
Infrastructure
  • Waterworks
  • Electricity
Description
  • Close to the beach
  • Quiet area
  • Sea views
  • Undisrupted sea views
  • Sea view panoramic
  • Large terrace
  • Large glass walls
  • Luxury

Holiday apartment

77.51 m2
A-D-319
Price
283.250 EUR

Are you interested in this property?

Contact us!

+385 23 300 400

info@demare.hr


Working hours:
Mon-Fri 8am-4pm and on request.

NOTE! This site uses cookies and similar technologies.

If you not change browser settings, you agree to it. Learn more

I understand

The use of cookies

We wish this web page to function properly and have the obligation to improve it further. This and our intention to improve your experience, requires for the page to store a small amount of information (cookies) onto your computer. Over 90% of all web sites use cookies. However, in accordance to the EU regulations from March 23rd 2011, we are obliged to ask for your approval before storing cookies onto your disc. By using our web site you agree to use cookies. If you wish to block cookies you can still access the site, but some of its features will not be available to you.

What is a cookie?
A cookie is a piece of information stored onto your computer by the web site you visit. Cookies in principle store your settings, the settings for web site you visit, such as preferred language and address. Later on, when you re-visit the same site, internet browser sends back the cookies belonging to the site. This enables the site to present the information adapted to your needs.

Cookies can store a wide range of information, including personal ones (such as your name of e-mail address). Still, this information can be stored only if you permit it to be stored – web sites cannot approach the information you have not made available and cannot reach other data (files or otherwise) on your computer. The process of data storing and sending cookies to you cannot be seen. However, you can change your settings on internet browser so as to be able to choose whether the request for storing cookies will be approved or refused, to erase stored cookies automatically when closing the internet browser etc.

How to disable the cookies ?
Disabling the cookies you decide whether to let the cookies be stored on your computer or not. Cookies setting can be controller and configures in your web browser. To get the information on cookies settings, select the browser you use. • Chrome • Firefox • Internet Explorer 9 • Opera (English page) • Safari (English page) If you disable the cookies you will not be able to use some of the web site functions.

What are temporary cookies ?
Temporary cookies, or session cookies, are removed from the computer by closing the internet browser. They are used by web-sites to store temporary data, such as settings in an e-buying basket.

What are persistent cookies ?
Persistent or stored cookies remain on the computer after closing the internet browser programme. Web-sites use them to store the data, such as user name and password, so that you do not need to login every time you visit a particular site. Persistent cookies will remain on your computer for days, months, even years.

What are first-party cookies ?
First-party cookies come from the web-site you are currently visiting, and can be persistent or temporary. Web-sites use these cookies to store the data to be used at your next visit to the particular web-site.

Does Cropex.hr use cookies ?
Yes, wishing primarily for out web-sites to provide a more satisfactory user experience for you.

What kind of cookies Cropex.hr uses and why ?

Are there any third-party cookies on our web-site ?
There are some outer services which store limited cookies to the user. These cookies have not been set by this web-site. However, some are used to enable normal functioning of some options, enabling users easier access to the contents. Presently, we enable:

 

Additional information of disabling cookies
There are currently few sites to help you disable storing cookies for various services.

Additional information can be found at the following web-sites;