Apartments | A-M-317 Zadar - Okolica -

Basic information

A modern, high-quality project is for sale, offering luxury and comfort for vacation and living in a unique, quiet location 600 m from the sea and a beautiful beach in Petrčane, not far from the city of Zadar.
This is a construction of a new, modern settlement in a sought-after location in Petrčane - 5 residential buildings, designed on 3 floors (GR + 2) with a roof terrace, and each has a total of 4 residential units. In the building's courtyard there is a garden and a courtyard where there is an outdoor parking lot, and two parking spaces are assigned to each apartment.
Construction is underway, and the completion of construction works is expected by summer 2026.
 
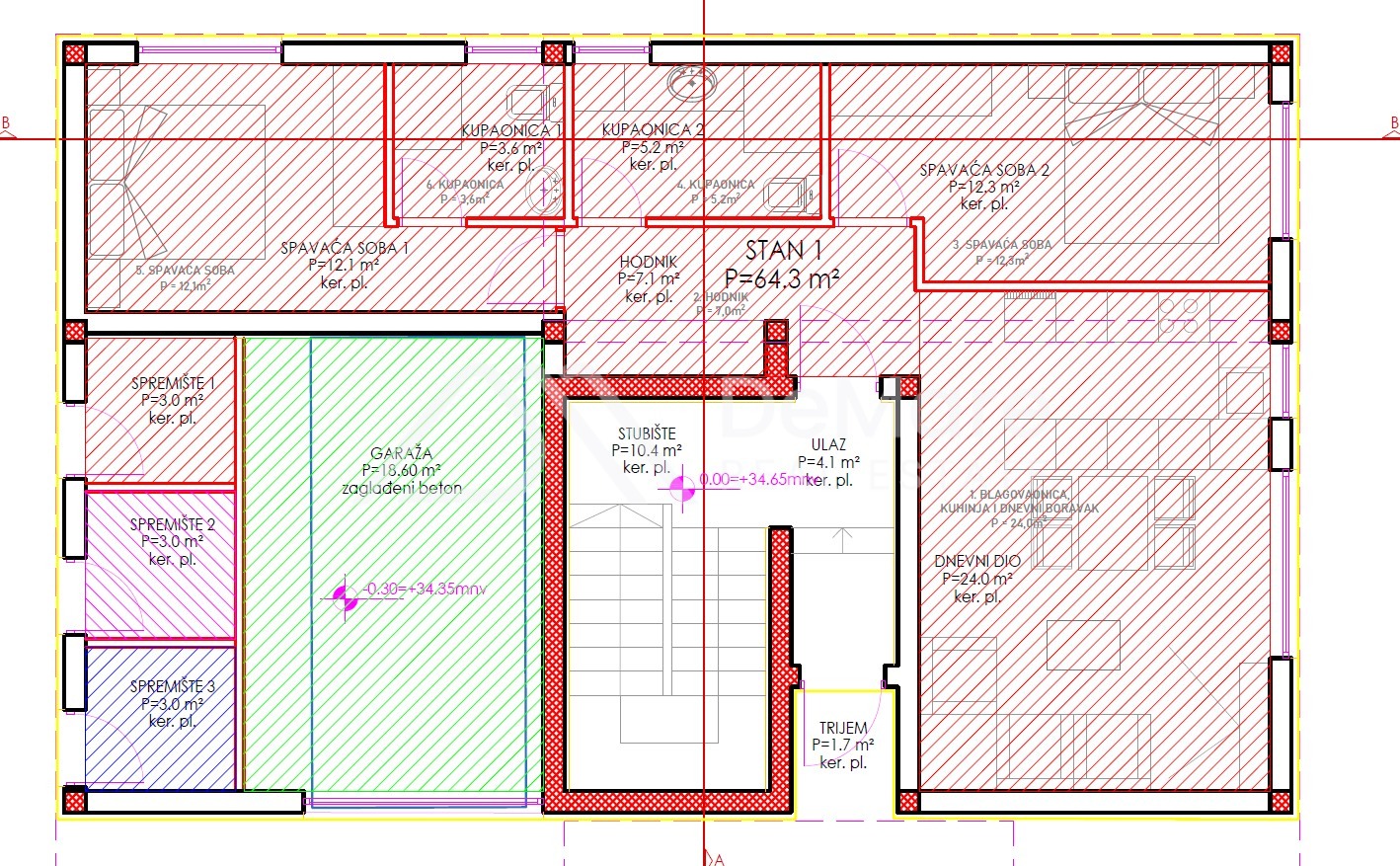
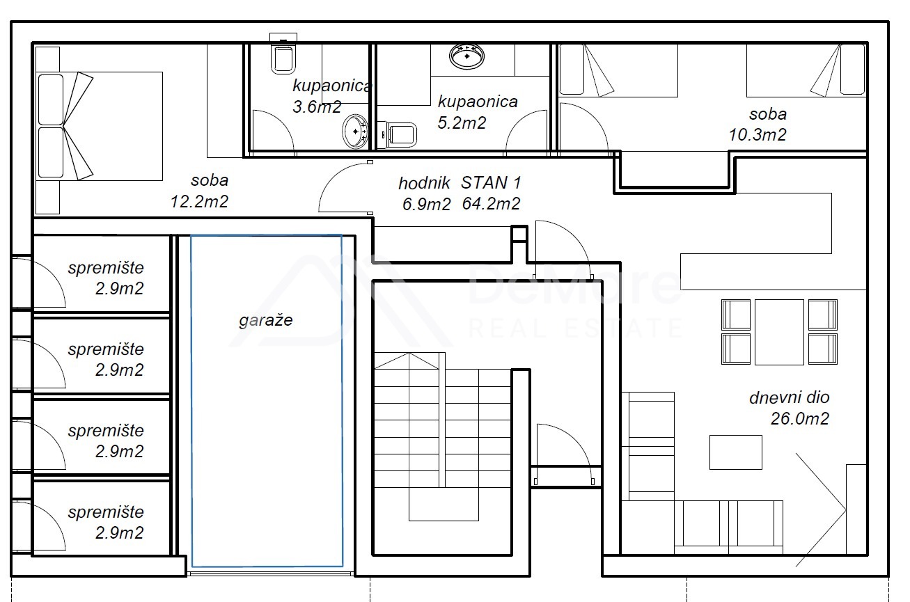
≅ GROUND FLOOR - S1: APARTMENT with two bedrooms and a garden
A beautiful, attractively located apartment, occupying most of the ground floor. A comfortable living room with kitchen and dining room, separated only by glass sliding walls from a spacious garden terrace.
The apartment consists of:
- Hall / 7.00 m2,
- Open space - living room with kitchen and dining room / 24.00 m2,
- Bathrooms / 5.20, m2
- Bathrooms / 3.60 m2,
- Bedrooms / 12.30 m2,
- Bedrooms / 12.10 m2,
- Terraces / 17.50 m2,
The interior living space occupies 64.20 m2.
This apartment also has a garden (90 m2), a storage room (3 m2) on the ground floor and two parking spaces in the building's yard (2 x 13.75 m2).
The total gross area of ​​the apartment is 202.20 m2, and the calculated value of the usable area of ​​the apartment with its accessories is 83.70 m2.
 
CHARACTERISTICS OF THE BUILDING:
≈ Thermal facade / Styrofoam 10 cm,
≈ Floor heating,
≈ Multi-split air conditioning system for heating and cooling in all rooms,
≈ Burglary and fireproof entrance door with sound insulation and silent locking,
≈ High-quality PVC joinery with three-layer IZO glass,
≈ Blinds with electric lifts and built-in mosquito nets,
≈ Luxury first-class ceramic floor coverings,
≈ Sanitary facilities of renowned manufacturers,
≈ First-class parquet floors and large-sized ceramics,
≈ Video intercom
 
!! ADVANTAGE when buying this property ⇒
The investor is a reliable legal entity with many years of experience in construction, and is in the VAT system, so the buyer DOES NOT PAY real estate sales tax.
 
For any additional information and advice, feel free to contact us!
De Mare d.o.o.
Tel: +385 23 300 400
Mail: info@demare.hr
 
 
LOCATION:
The facility is located in an exceptional location in Petrčane, 600 m from the sea and a well-maintained beach, and nearby there are numerous facilities such as restaurants, coffee bars, shops.
Petrčane is a small tourist town in Zadar County in Croatia. It is located about 10 km north of Zadar, surrounded by long pebble beaches and a dense pine forest, which is why it is very recognizable. It is surrounded by two peninsulas - Punta Radman and Punta Skala and has about 600 permanent residents. The town exudes a family atmosphere thanks to the 2-kilometer-long beach that offers a variety of entertainment / recreational facilities, crystal clear sea, and a dense pine forest that provides thick shade during the summer heat.
Zadar Airport Zemunik is only 18.5 km away and is well connected to many European cities and destinations. The ferry port of Gaženica / Zadar is 13 km away, has lines with most islands, and during the summer season is a stop for numerous tourist cruisers.

Extra information

Code 5280-1
Code A-M-317
Type sale - flat
Subtype Holiday apartment
Country Hrvatska
County Zadarska
City Zadar - Okolica
City area Petrčane
Total price 267.840 EUR
Price per m2 3.200 EUR
Size 83.7 m2
Sea distance 650 m
Distance to center 1000 m
No. of rooms 3
No. of bathrooms 2
Floor ground floor
Floor
Built 2026
Conditions New construction,Under construction
Extra Spaces
  • Terrace
  • Garden
  • Storage space
  • Hall
  • Kitchen
  • Bathroom
  • Parking
  • Bedroom
  • Living room
  • Dining room
Infrastructure
  • Waterworks
  • Electricity
Description
  • Quiet area
  • Access - paved
  • Well-maintained yard
  • Large terrace
  • Large glass walls
  • Luxury

Holiday apartment

83.7 m2
A-M-317
Price
267.840 EUR

Are you interested in this property?

Contact us!

+385 23 300 400

info@demare.hr


Working hours:
Mon-Fri 8am-4pm and on request.

NOTE! This site uses cookies and similar technologies.

If you not change browser settings, you agree to it. Learn more

I understand

The use of cookies

We wish this web page to function properly and have the obligation to improve it further. This and our intention to improve your experience, requires for the page to store a small amount of information (cookies) onto your computer. Over 90% of all web sites use cookies. However, in accordance to the EU regulations from March 23rd 2011, we are obliged to ask for your approval before storing cookies onto your disc. By using our web site you agree to use cookies. If you wish to block cookies you can still access the site, but some of its features will not be available to you.

What is a cookie?
A cookie is a piece of information stored onto your computer by the web site you visit. Cookies in principle store your settings, the settings for web site you visit, such as preferred language and address. Later on, when you re-visit the same site, internet browser sends back the cookies belonging to the site. This enables the site to present the information adapted to your needs.

Cookies can store a wide range of information, including personal ones (such as your name of e-mail address). Still, this information can be stored only if you permit it to be stored – web sites cannot approach the information you have not made available and cannot reach other data (files or otherwise) on your computer. The process of data storing and sending cookies to you cannot be seen. However, you can change your settings on internet browser so as to be able to choose whether the request for storing cookies will be approved or refused, to erase stored cookies automatically when closing the internet browser etc.

How to disable the cookies ?
Disabling the cookies you decide whether to let the cookies be stored on your computer or not. Cookies setting can be controller and configures in your web browser. To get the information on cookies settings, select the browser you use. • Chrome • Firefox • Internet Explorer 9 • Opera (English page) • Safari (English page) If you disable the cookies you will not be able to use some of the web site functions.

What are temporary cookies ?
Temporary cookies, or session cookies, are removed from the computer by closing the internet browser. They are used by web-sites to store temporary data, such as settings in an e-buying basket.

What are persistent cookies ?
Persistent or stored cookies remain on the computer after closing the internet browser programme. Web-sites use them to store the data, such as user name and password, so that you do not need to login every time you visit a particular site. Persistent cookies will remain on your computer for days, months, even years.

What are first-party cookies ?
First-party cookies come from the web-site you are currently visiting, and can be persistent or temporary. Web-sites use these cookies to store the data to be used at your next visit to the particular web-site.

Does Cropex.hr use cookies ?
Yes, wishing primarily for out web-sites to provide a more satisfactory user experience for you.

What kind of cookies Cropex.hr uses and why ?

Are there any third-party cookies on our web-site ?
There are some outer services which store limited cookies to the user. These cookies have not been set by this web-site. However, some are used to enable normal functioning of some options, enabling users easier access to the contents. Presently, we enable:

 

Additional information of disabling cookies
There are currently few sites to help you disable storing cookies for various services.

Additional information can be found at the following web-sites;