Flats | S-I-1036 Zadar - Diklovac

Basic information

For sale is a high-quality and modern new building project with a sea view, in an excellent, quiet location in the city of Zadar, in the Diklovac area.
This is a project of an apartment building (basement, ground floor, first and second floors, and roof terraces), consisting of 10 residential units. Each apartment has 2 parking spaces in the building's yard, as well as a storage room in the underground floor. Some apartments on the ground floor have their own part of the garden, and apartments on the second floor have roof terraces with a beautiful view of the sea and islands.
All floors of the building from the basement to the roof terrace are connected by an elevator.
Completion of construction works is planned by 07/2026, and obtaining the occupancy permit in 09/2026.
Possibility of paying a 10% deposit, and the rest of the payment by credit after obtaining the occupancy permit for the facility.
 
BUILDING FEATURES AND EQUIPMENT:
Underfloor heating is installed in the living room and bathrooms for heating the apartments.
Air conditioning units for cooling + heating are installed in all rooms.
High-quality exterior PVC joinery with triple-layered insulated glass and ALU shutters is being installed, and the entrance door is burglar-proof / fire-proof.
There is a possibility of choosing flooring (parquet and tiles) within the given budget or paying extra according to your own choice - as agreed with the investor.
A video intercom will be installed at the entrance to the building.
 
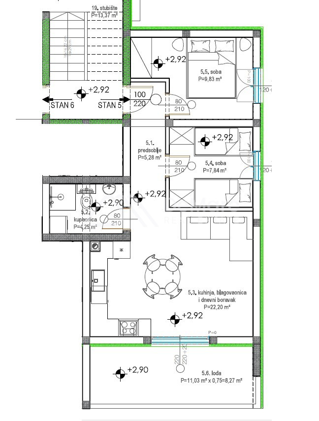
1ST FLOOR - S5: Apartment with 2 bedrooms and a loggia
The apartment is located on the first floor of the building and consists of:
- Hall / 5.28 m2,
- Living room with kitchen and dining room (open space) / 22.20 m2,
- 2 bedrooms / 9.83 m2 and 7.84 m2,
- bathroom / 4.25 m2 and
- Loggia / 11.03 m2.
The interior area of ​​the apartment is 49.40 m2.
The apartment also has a storage room (3.74 m2) in the basement of the building, and there are 2 outdoor parking spaces (2 x 13.75 m2) in the yard.
The total usable area of ​​the apartment is 65.04 m2.
 
For any additional information, please contact us!
De Mare d.o.o.
Tel: +385 23 300 400
Mail: info@demare.hr
 
LOCATION:
The location of the property is excellent due to its proximity to the sea and beach approx. 650 m, the distance to the city center is approx. 3 km, and from Zemunik airport it is approx. 17 km.
Diklovac is located just above Diklo, which is considered an elite part of the city of Zadar, and is located right on the coast with plenty of holiday accommodation, restaurants, bars and shops. A long local promenade with a beach leads to the local marina, and the pebble coast offers a beautiful view of the islands of the Zadar archipelago.

Extra information

Code S-I-1036
Type sale - flat
Subtype Flat in a building
Country Hrvatska
County Zadarska
City Zadar
City area Zadar
District Diklovac
Total price 273.168 EUR
Price per m2 4.200 EUR
Size 65.04 m2
Sea distance 650 m
Distance to center 3000 m
No. of rooms 3
No. of bathrooms 1
Floor 1
Built 2026
Conditions New construction,Under construction
Extra Spaces
  • Dining room
  • Living room
  • Kitchen
  • Bathroom
  • Loggia
  • Parking
  • Bedroom
  • Storage space
Infrastructure
  • Waterworks
  • Electricity
Description
  • Quiet area
  • Sea views
  • Partial sea views
  • Access - paved
  • Project documentation
  • Large terrace
  • Large glass walls

Flat in a building

65.04 m2
S-I-1036
Price
273.168 EUR

Are you interested in this property?

Contact us!

+385 23 300 400

info@demare.hr


Working hours:
Mon-Fri 8am-4pm and on request.

NOTE! This site uses cookies and similar technologies.

If you not change browser settings, you agree to it. Learn more

I understand

The use of cookies

We wish this web page to function properly and have the obligation to improve it further. This and our intention to improve your experience, requires for the page to store a small amount of information (cookies) onto your computer. Over 90% of all web sites use cookies. However, in accordance to the EU regulations from March 23rd 2011, we are obliged to ask for your approval before storing cookies onto your disc. By using our web site you agree to use cookies. If you wish to block cookies you can still access the site, but some of its features will not be available to you.

What is a cookie?
A cookie is a piece of information stored onto your computer by the web site you visit. Cookies in principle store your settings, the settings for web site you visit, such as preferred language and address. Later on, when you re-visit the same site, internet browser sends back the cookies belonging to the site. This enables the site to present the information adapted to your needs.

Cookies can store a wide range of information, including personal ones (such as your name of e-mail address). Still, this information can be stored only if you permit it to be stored – web sites cannot approach the information you have not made available and cannot reach other data (files or otherwise) on your computer. The process of data storing and sending cookies to you cannot be seen. However, you can change your settings on internet browser so as to be able to choose whether the request for storing cookies will be approved or refused, to erase stored cookies automatically when closing the internet browser etc.

How to disable the cookies ?
Disabling the cookies you decide whether to let the cookies be stored on your computer or not. Cookies setting can be controller and configures in your web browser. To get the information on cookies settings, select the browser you use. • Chrome • Firefox • Internet Explorer 9 • Opera (English page) • Safari (English page) If you disable the cookies you will not be able to use some of the web site functions.

What are temporary cookies ?
Temporary cookies, or session cookies, are removed from the computer by closing the internet browser. They are used by web-sites to store temporary data, such as settings in an e-buying basket.

What are persistent cookies ?
Persistent or stored cookies remain on the computer after closing the internet browser programme. Web-sites use them to store the data, such as user name and password, so that you do not need to login every time you visit a particular site. Persistent cookies will remain on your computer for days, months, even years.

What are first-party cookies ?
First-party cookies come from the web-site you are currently visiting, and can be persistent or temporary. Web-sites use these cookies to store the data to be used at your next visit to the particular web-site.

Does Cropex.hr use cookies ?
Yes, wishing primarily for out web-sites to provide a more satisfactory user experience for you.

What kind of cookies Cropex.hr uses and why ?

Are there any third-party cookies on our web-site ?
There are some outer services which store limited cookies to the user. These cookies have not been set by this web-site. However, some are used to enable normal functioning of some options, enabling users easier access to the contents. Presently, we enable:

 

Additional information of disabling cookies
There are currently few sites to help you disable storing cookies for various services.

Additional information can be found at the following web-sites;