Zadar - Bili brig
Prodaja - Stan
Osnovne informacije
Radi se o višestambenoj zgradi koja se sastoji od ukupno 9 stanova. Zgrada ima prizemlje, prvi i drugi kat s izlazom na krovne terase.
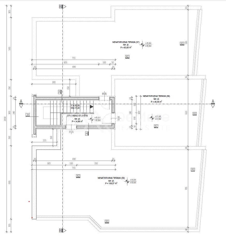
Krov je podijeljen na tri krovne terase, te svakom stanu koji se nalazi na drugom katu pripada jedna odvojena krovna terasa.
Za grijanje i hlađenje stanova postavljeni su klimatizacijski uređaji u dnevnom boravku i spavaćim sobama, a podno električno grijanje je instalirano u cijelom stanu.
U izgradnji i opremanju zgrade, koriste se suvremeni kvalitetni građevinski materijali i oprema.
Zgrada ima cigleno-betonsku konstrukciju, termofasadu (10 cm), ugrađuje se prvoklasna ALU stolarija s troslojnim staklima i komarnicima i velike klizne staklene stijene sa roletama na elektro-pogon. Ulazna vrata su protuprovalna / protupožarna.
Izvođenje građevinskih radova za započelo, a predviđeni završetak radova i useljenje u stanove je krajem 2026. godine.
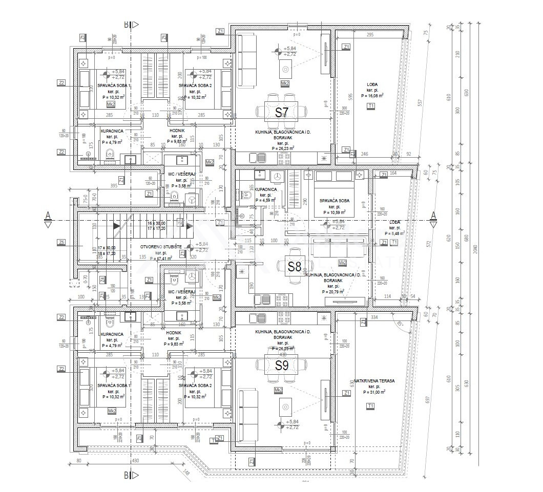
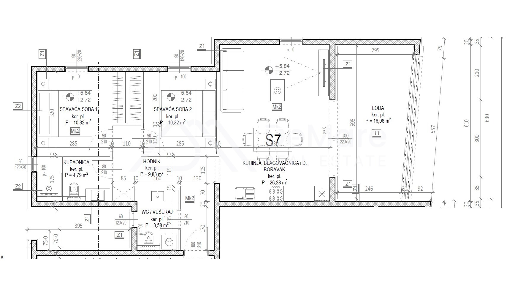
2. KAT S7 ≅ Stan s 2 spavaće sobe i terasa s pogledom na more
Stan se nalazi na 2. katu zgrade a sastoji se od:
- ulaznog dijela / hodnika (9,83 m2),
- open space dnevnog boravka s kuhinjom i blagovaonicom (26,23 m2),
- spavaće sobe (10,32 m2),
- spavaće sobe (10,32 m2),
- kupaonice (4,79 m2),
- praonice / toaleta (3,58 m2).
Unutarnji stambeni prostor zauzima površinu od 65,07 m2.
Iznad stana nalazi se prekrasna krovna terasa s panoramskim pogledom na more, ukupne površine 83,65 m2, na kojoj se mogu postaviti i urediti razni sadržaji za boravak na otvorenom, prema željama kupca.
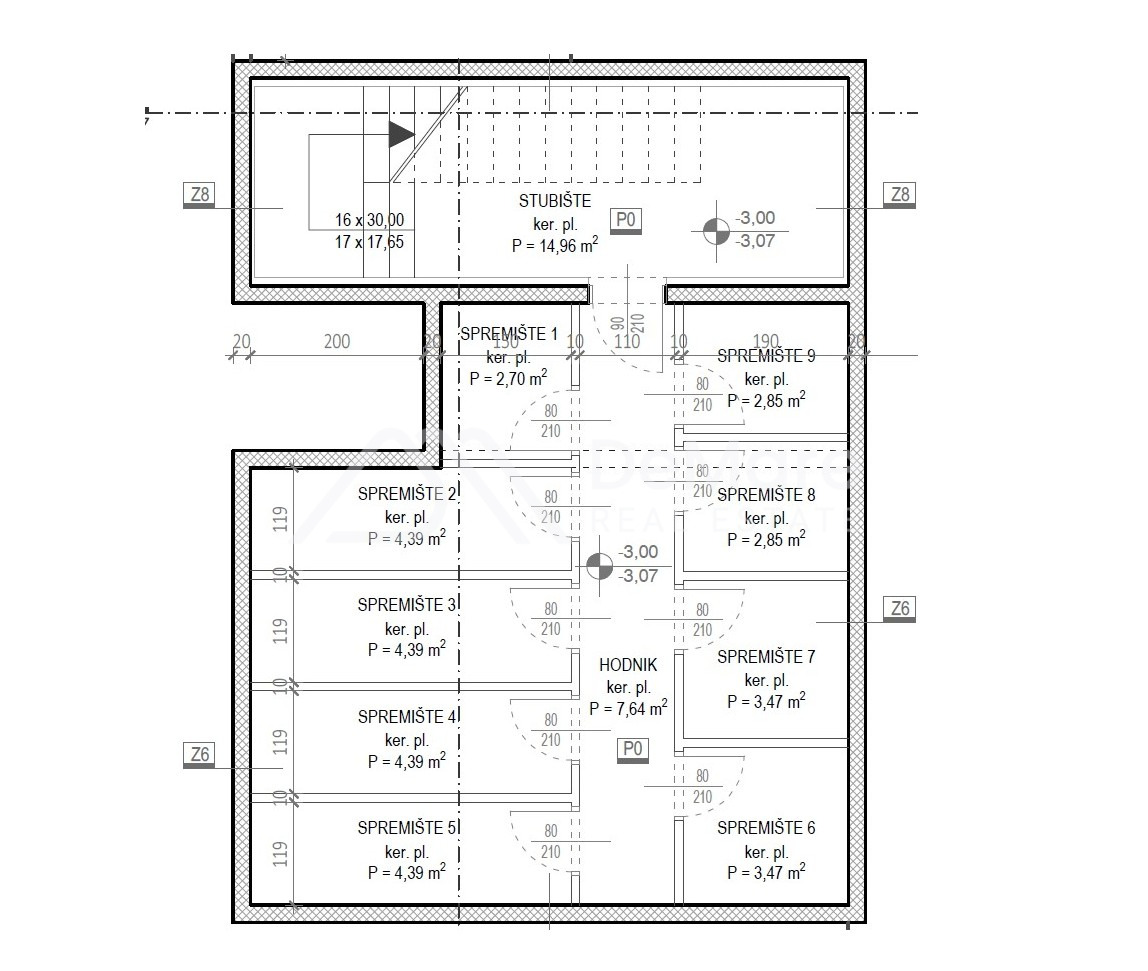
Stanu pripada lođa (16,08 m2), 2 vanjska parkirna mjesta (2 x 13,75 m2) i spremište (3,47 m2) u podrumu zgrade, pa ukupna obračunska korisna vrijednost stana s pripadcima, iznosi 105,28 m2 (brutto površina stana 191,75 m2).
Također postoji opcija odabira keramike i parketa prema dogovoru s investitorom, ovisno o fazama gradnje.
Za sve ostale infromacije i prezentaciju projekta, slobodno nas kontaktirajte!
De Mare d.o.o.
+385 23 300 400
info@demare.hr
LOKACIJA:
Objekt se nalazi na mirnoj lokaciji, 5 minuta vožnje (3 km) od mora, plaže i centra grada Zadra - poluotoka, a u blizini je svih potrebnih sadržaja (supermarket, škola, vrtić, ljekarna, medicinska i dentalna ambulanta, caffe bar, i igralište) za ugodan i miran život.
Zadarska zračna luka udaljena je svega 8 km i odlično je povezana sa mnogim europskim gradovima i destinacijama.
Trajektna luka Zadar koja je udaljena 3 km od objekta, ima linije sa većinom otoka, a tijekom ljetne sezone je stanica brojnim turističkim cruiserima.
Opis
| Šifra | S-D-1029 |
| Tip | prodaja - stan |
| Podtip | Stan u zgradi |
| Država | Hrvatska |
| Županija | Zadarska |
| Grad | Zadar |
| Općina | Zadar |
| Kvart | Bili brig |
| Ukupna cijena | 336.896 EUR |
| Cijena po m2 | 3.200 EUR |
| Površina | 105.28 m2 |
| Udaljenost od mora | 3000 m |
| Udaljenost od centra | 3000 m |
| Broj soba | 3 |
| Broj kupaonica | 1 |
| Kat | 2 |
| Godina izgradnje | 2026 |
| Stanje | Novogradnja,U izgradnji |
| Dozvole |
|
- Dodatni prostor
- Hodnik
- Kuhinja
- Loggia
- Parking
- Spavaća soba
- Spremište
- Toalet
- Ostava
- Infrastruktura
- Gradski vodovod
- Struja
- Opis
- Blizina dućana
- Blizina škole
- Pogled na more
- Pogled panoramski
- Projektna dokumentacija
- Velike staklene stijene
Stan u zgradi
- 105.28 m2
- S-D-1029
- Cijena
- 336.896 EUR