Stanovi | S-I-1049 Zadar - Crvene kuće

Osnovne informacije

U prodaji je novi projekt stambene zgrade sa jednosobnim i dvosobnim stanovima odlične kvalitete koji se nalazi u Zadru, na području Crvene kuće.
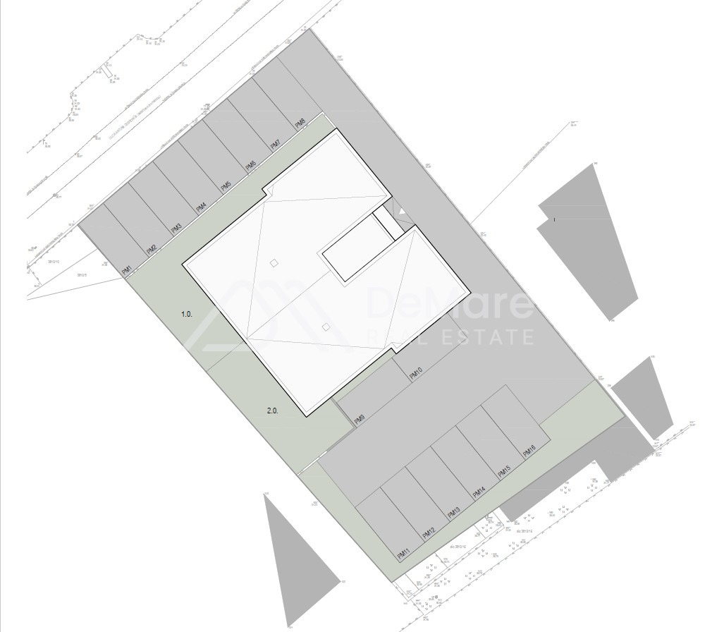
Zgrada će imati 3 etaže (PR+1.KAT+2.KAT), ostave u prizemlju i parkirališna mjesta na okućnici zgrade. Ukupno je 8 stambenih jedinica; u prizemlju se nalaze 2 stana s vrtom, a na svakoj gornjoj etaži projektirana su po 3 stana.
Svakoj stambenoj jedinici pripada jedno spremište i dva parkirna mjesta.
Početak izgradnje planiran je krajem 2025. godine, a završetak građevinskih radova očekuje se do kraja 2026. godine.
 
OPREMA ZGRADE:
U izgradnji ove stambene zgrade koristiti će se najkvalitetniji materijali koji će biti ugrađeni prema najvišim standardima gradnje :
≅ Termo fasada zgrade / 10 cm stiropor
≅ PVC stolarija s trostrukim IZO staklima (LOW-e ispuna)
≅ Ugrađeni komarnici
≅ ALU Rolete s električnim podizačima na balkonskim stijenama
≅ Video portafon
≅ Ostave za stanare u prizemlju
Raspored prostorija je savršeno funkcionalan i maksimalno iskorišten. Sve prostorije su zbog velikih prozora i staklenih stijena ispunjene prirodnom svjetlošću.
 
 2. KAT / S6: Stan s dvije spavaće sobe i lođom
Ovaj komforni stan nalazi se na drugom katu zgrade, a sastoji se od :
- Hodnika (8,69 m2)
- Spavaće sobe (10,73 m2),
- Spavaće sobe (10,89 m2),
- Kupaonice (5,19 m2),
- Toaleta (3,41 m2),
- Dnevnog boravka s kuhinjom i  blagovaonicom /open space (22,45 m2) s izlazom na
- Lođu (10,00 m2).
Stanu pripada  ostava (3,91 m2) u prizemlju i 2 vanjska parkirna mjesta (2 x 13,75 m2)  na okućnici zgrade.
Unutarnja površina stana je 61,36 m2, a ukupna korisna obračunska vrijednost površine stana s pripadcima iznosi 78,27 m2.
 
OPREMA STANA:
- Klimatizacija (grijanje i hlađenje) - mulit-split sistem, svaka prostorija ima vlastitu jedinicu
- Keramičke pločice i sanitarije vrhunske kvalitete
- U kupaonici  - električni radijator 
- Protuprovalna / protupožarna vrata
 
PREDNOST kod kupnje ove nekretnine :
Kupac NE PLAĆA porez na promet nekretnina, jer je investitor pouzdana pravna osoba s dugogodišnjim iskustvom u graditeljstvu, i u sustavu je PDV-a.
 
Za obilazak lokacije, prezentaciju projekta i odabrane nekretnine,
kao i za sve ostale informacije slobodno nas kontaktirajte!!
 
De Mare d.o.o.
Tel:   +385 23 300 400
Mail:  info@demare.hr
 
LOKACIJA:
Zadar je europski grad po mjeri čovjeka sa najljepšim zalaskom sunca i grad u kojem more svira orgulje, te privlači mnoštvo turista tijekom cijele godine. Ljeti zbog prekrasnih plaža kojima je okružen, a u ostala godišnja doba zbog svoje bogate kulturne baštine, gastronomije i brojnih prirodnih ljepota koje posjeduje. Grad Zadar je smješten u samom središtu Jadranske obale, odlikuje se blagom mediteranskom klimom, a okružen je sa 4 Nacionalna parka (Plitvička jezera, Paklenica, slapovi Krke i arhipelag otoka Kornati).
Zadarska zračna luka udaljena je svega 8 km i odlično je povezana sa mnogim europskim gradovima i destinacijama.
Trajektna luka Zadar koja je udaljena 2,5 km od objekta, ima linije sa većinom otoka, a tijekom ljetne sezone je stanica brojnim turističkim cruiserima.
 
 

Opis

Šifra S-I-1049
Tip prodaja - stan
Podtip Stan u zgradi
Država Hrvatska
Županija Zadarska
Grad Zadar
Općina Zadar
Kvart Crvene kuće
Ukupna cijena 297.426 EUR
Cijena po m2 3.800 EUR
Površina 78.27 m2
Udaljenost od mora 1700 m
Udaljenost od centra 2000 m
Broj soba 3
Broj kupaonica 1
Kat 1
Godina izgradnje 2026
Stanje Novogradnja,U izgradnji
Dozvole
  • Vlasnički list
Dodatni prostor
  • Parking
  • Ostava
Infrastruktura
  • Gradski vodovod
  • Struja
Opis
  • Blizina dućana
  • Miran predio
  • Prilaz - asfaltirani
  • Velike staklene stijene

Stan u zgradi

78.27 m2
S-I-1049
Cijena
297.426 EUR

Zanima vas ova nekretnina?

Kontaktirajte nas!

+385 23 300 400

info@demare.hr


Radno vrijeme:
Pon-Pet 8-16 sati i po dogovoru.

NAPOMENA! Ova stranica koristi kolačiće i slične tehnologije.

Ukoliko ne promijenite postavke preglednika, prihvaćate kolačiće. Saznaj više

Prihvaćam

Uporaba kolačića

Kako bi ova web stranica radila pravilno, kako bismo bili u stanju vršiti daljnja unaprjeđenja stranice, u svrhu poboljšavanja vašega iskustva pregledavanja, ova stranica mora na vaše računalo spremiti malenu količinu informacija ( Cookies ) . Preko 90 % svih web stranica koristi ovu praksu no prema regulacijama Europske unije od 25.03.2011. obvezni smo prije spremanja Cookie-a zatražiti vaš pristanak. Korištenjem web stranice pristajete na uporabu Cookie-a. Blokiranjem cookie i dalje možete pregledavati stranicu, no neke njezine mogućnosti Vam neće biti dostupne. 

Što je kolačić?
Kolačić je informacija spremljena na Vaše računalo od strane web stranice koju posjetite. Kolačići obično spremaju Vaše postavke, postavke za web stranicu, kao što su preferirani jezik ili adresa. Kasnije, kada opet otvorite istu web stranicu internet preglednik šalje natrag kolačiće koji pripadaju toj stranici. Ovo omogućava stranici da prikaže informacije prilagođene Vašim potrebama.

Kolačići mogu spremati širok pojas informacija uključujući osobne informacije (kao što je Vaše ime ili e-mail adresa). Ipak, ova informacija može biti spremljena jedino ako Vi to omogućite - web stranice ne mogu dobiti pristup informacijama koji im Vi niste dali i ne mogu pristupiti drugim datotekama na Vašem računalu. Zadane aktivnosti spremanja i slanja kolačića Vama nisu vidljive. Ipak, možete promjeniti Vaše postavke internet preglednika da možete sami birati hoćete li zahtjeve za spremanje kolačića odobriti ili odbiti, pobrišete spremljene kolačiće automatski pri zatvaranju internet preglednika i slično.

Kako onemogućiti kolačiće
Isključivanjem kolačića odlučujete da li hoćete dopustiti pohranjivanje kolačića na vašem računalu. Cookie postavke mogu se kontrolirati i konfigurirati u vašem web pregledniku. Za informacije o postavkama kolačića, odaberite web-preglednik koji koristite. • Chrome • Firefox • Internet Explorer 9 • Opera (stranica na engleskom jeziku) • Safari (stranica na engleskom) Ako onemogućite kolačiće, nećete moći koristiti neke od funkcionalnosti na web stranicama

Što su privremeni kolačići?
Privremeni kolačići ili kolačići sesije uklanjaju se s računala po zatvaranju internet preglednika. Pomoću njih web-mjesta pohranjuju privremene podatke, poput stavki u košarici za kupnju.

Što su stalni kolačići?
Stalni ili spremljeni kolačići ostaju na računalu nakon zatvaranja programa internet preglednika. Pomoću njih web-mjesta pohranjuju podatke, kao što su ime za prijavu i lozinka, tako da se ne morate prijavljivati prilikom svakog posjeta određenom mjestu. Stalni kolačići ostat će na računalu danima, mjesecima, čak i godinama.

Što su kolačići od prve strane?
Kolačići od prve strane dolaze s web-mjesta koje gledate, a mogu biti stalni ili privremeni. Pomoću tih kolačića web-mjesta mogu pohraniti podatke koje će ponovo koristiti prilikom sljedećeg posjeta tom web-mjestu.

Što su kolačići treće strane?
Kolačići treće strane dolaze s reklama drugih web-mjesta (kao što su skočne ili druge reklame) koje se nalaze na web-mjestu koje gledate. Pomoću tih kolačića web-mjesta mogu pratiti korištenje Interneta u marketinške svrhe.

Da li demare.hr koristi kolačiće?
Da, s primarnim ciljem kako bi naše web stranice vam omogućile bolje korisničko iskustvo.

Kakve kolačiće koristi demare.hr i zašto

Da li na web stranici ima kolačića treće strane?
Ima nekoliko vanjskih servisa koji korisniku spremaju limitirane kolačiće. Ovi kolačići nisu postavljeni od strane ove web stranice, ali neki služe za normalno funkcioniranje određenih mogućnosti koje korisnicima olakšavaju pristup sadržaju. Trenutno omogućujemo:

Dodatne informacija oko isključivanja kolačića
Trenutno postoji nekoliko web stranica za isključivanje pohranjivanja kolačića za različite servise.

Više se možete informirati na sljedećim linkovima: