Zadar - Crvene kuće
Prodaja - Stan
Osnovne informacije
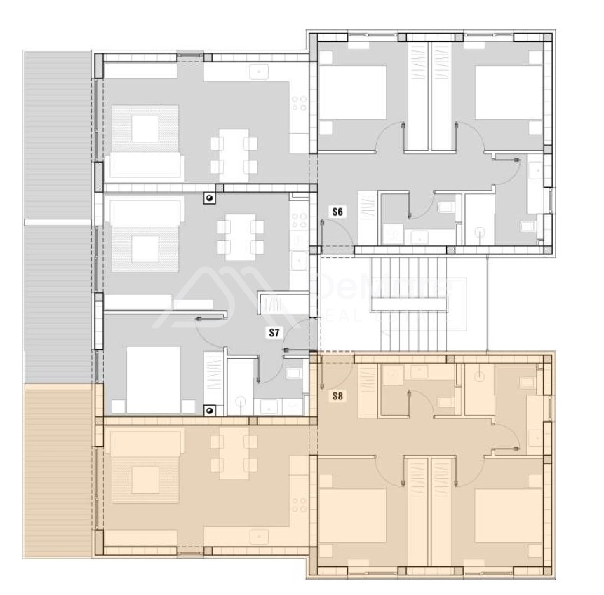
Zgrada će imati 3 etaže (PR+1.KAT+2.KAT), ostave u prizemlju i parkirališna mjesta na okućnici zgrade. Ukupno je 8 stambenih jedinica; u prizemlju se nalaze 2 stana s vrtom, a na svakoj gornjoj etaži projektirana su po 3 stana.
Svakoj stambenoj jedinici pripada jedno spremište i dva parkirna mjesta.
Početak izgradnje planiran je krajem 2025. godine, a završetak građevinskih radova očekuje se do kraja 2026. godine.
OPREMA ZGRADE:
U izgradnji ove stambene zgrade koristiti će se najkvalitetniji materijali koji će biti ugrađeni prema najvišim standardima gradnje :
≅ Termo fasada zgrade / 10 cm stiropor
≅ PVC stolarija s trostrukim IZO staklima (LOW-e ispuna)
≅ Ugrađeni komarnici
≅ ALU Rolete s električnim podizačima na balkonskim stijenama
≅ Video portafon
≅ Ostave za stanare u prizemlju
Raspored prostorija je savršeno funkcionalan i maksimalno iskorišten. Sve prostorije su zbog velikih prozora i staklenih stijena ispunjene prirodnom svjetlošću.
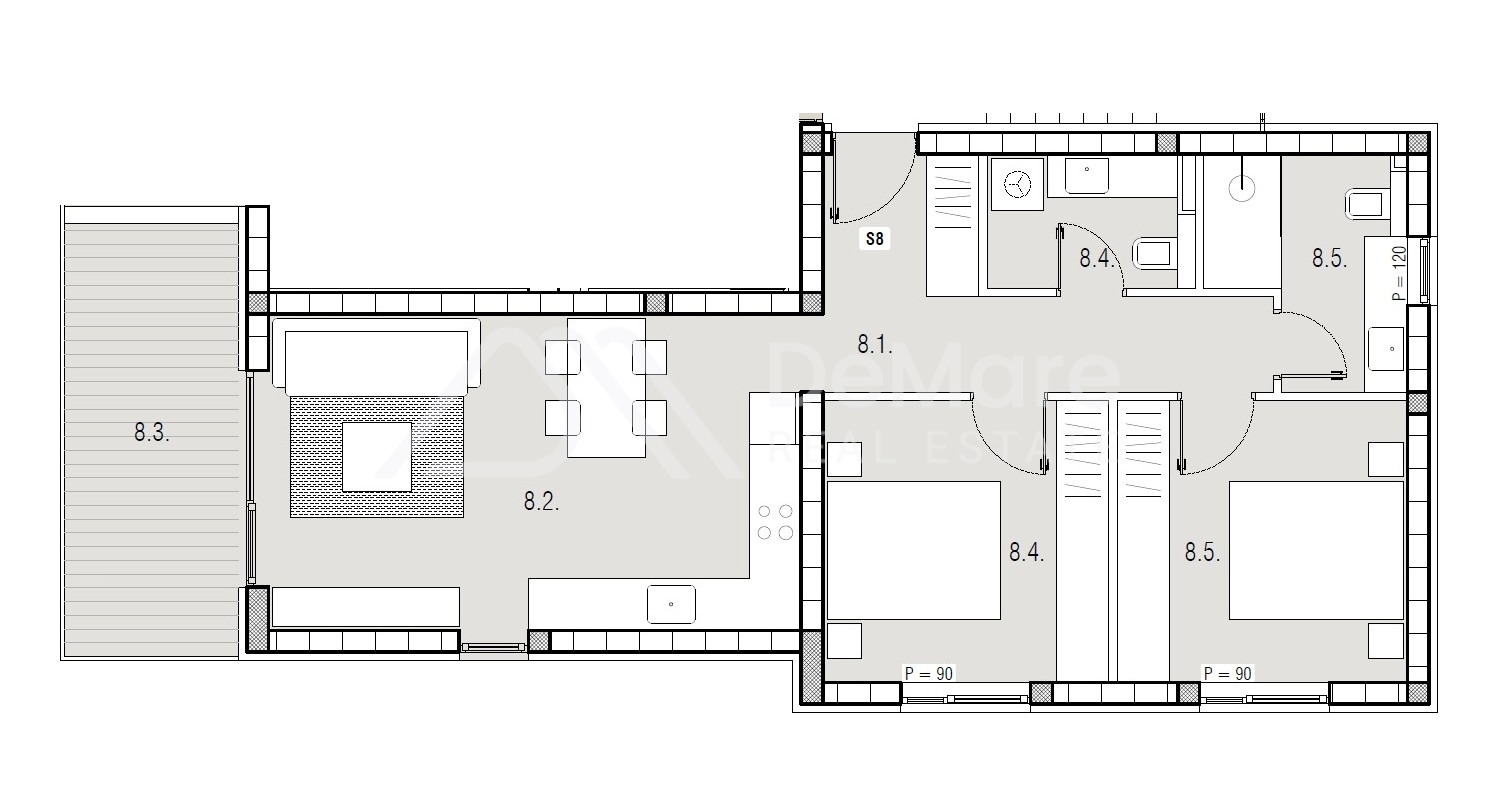
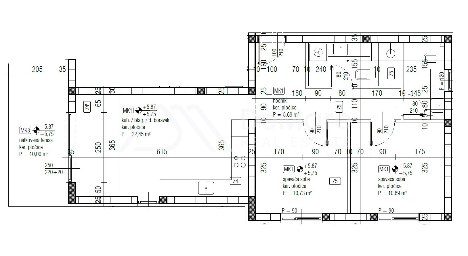
2. KAT / S8: Stan s dvije spavaće sobe i lođom
Ovaj komforni stan nalazi se na drugom katu zgrade, a sastoji se od:
- Hodnika (8,69 m2)
- Spavaće sobe (10,73 m2),
- Spavaće sobe (10,89 m2),
- Kupaonice (5,19 m2),
- Toaleta (3,41 m2),
- Dnevnog boravka s kuhinjom i blagovaonicom /open space (22,45 m2) s izlazom na
- Lođu (10,00 m2).
Stanu pripada ostava (3,91 m2) u prizemlju i 2 vanjska parkirna mjesta (2 x 13,75 m2) na okućnici zgrade.
Unutarnja površina stana je 61,36 m2, a ukupna korisna obračunska vrijednost površine stana s pripadcima iznosi 78,27 m2.
OPREMA STANA:
- Klimatizacija (grijanje i hlađenje) - mulit-split sistem, svaka prostorija ima vlastitu jedinicu
- Keramičke pločice i sanitarije vrhunske kvalitete
- U kupaonici - električni radijator
- Protuprovalna / protupožarna vrata
PREDNOST kod kupnje ove nekretnine :
Kupac NE PLAĆA porez na promet nekretnina, jer je investitor pouzdana pravna osoba s dugogodišnjim iskustvom u graditeljstvu, i u sustavu je PDV-a.
Za obilazak lokacije, prezentaciju projekta i odabrane nekretnine,
kao i za sve ostale informacije slobodno nas kontaktirajte!!
De Mare d.o.o.
Tel: +385 23 300 400
Mail: info@demare.hr
LOKACIJA:
Zadar je europski grad po mjeri čovjeka sa najljepšim zalaskom sunca i grad u kojem more svira orgulje, te privlači mnoštvo turista tijekom cijele godine. Ljeti zbog prekrasnih plaža kojima je okružen, a u ostala godišnja doba zbog svoje bogate kulturne baštine, gastronomije i brojnih prirodnih ljepota koje posjeduje. Grad Zadar je smješten u samom središtu Jadranske obale, odlikuje se blagom mediteranskom klimom, a okružen je sa 4 Nacionalna parka (Plitvička jezera, Paklenica, slapovi Krke i arhipelag otoka Kornati).
Zadarska zračna luka udaljena je svega 8 km i odlično je povezana sa mnogim europskim gradovima i destinacijama.
Trajektna luka Zadar koja je udaljena 2,5 km od objekta, ima linije sa većinom otoka, a tijekom ljetne sezone je stanica brojnim turističkim cruiserima.
Opis
| Šifra | S-I-1049 |
| Tip | prodaja - stan |
| Podtip | Stan u zgradi |
| Država | Hrvatska |
| Županija | Zadarska |
| Grad | Zadar |
| Općina | Zadar |
| Kvart | Crvene kuće |
| Ukupna cijena | 297.426 EUR |
| Cijena po m2 | 3.800 EUR |
| Površina | 78.27 m2 |
| Udaljenost od mora | 1700 m |
| Udaljenost od centra | 2000 m |
| Broj soba | 3 |
| Broj kupaonica | 1 |
| Kat | 2 |
| Godina izgradnje | 2026 |
| Stanje | Novogradnja,U izgradnji |
| Dozvole |
|
- Infrastruktura
- Gradski vodovod
- Struja
- Opis
- Blizina dućana
- Miran predio
- Prilaz - asfaltirani
- Velike staklene stijene
Stan u zgradi
- 78.27 m2
- S-I-1049
- Cijena
- 297.426 EUR