Stanovi | S-I-1056 Zadar - Plovanija

Osnovne informacije

U prodaji je projekt novogradnje na odličnoj, mirnoj lokaciji u gradu Zadru, na području Plovanije.
Radi se o projektu višestambene zgrade koja se sastoji od prizemlja i 2 kata sa ukupno 8 stambenih jedinica.
U prizemnoj etaži nalaze se tri natkrivena parkinga i dvije stambene jedinice, a na uređenoj okućnici zgrade, osigurana su dva vanjska parkirna mjesta po stambenoj jedinici. Na svakoj etaži (prvi i drugi kat) smještana su 3 stana.
U blizini objekta uskoro će biti uređen novi rekreacijski park na Plovaniji, u kojem će se napraviti nogometno i dječje igralište te razni drugi sportsko-rekreacijski sadržaji.
Završetak građevinskih radova i useljenje u stanove očekuje se do kraja 11/2026. godine.
 
KARAKTERISTIKE I OPREMA NEKRETNINE:
= Konstrukcija zgrade / Armirano betonska 
= Termofasada / Stiropor 10 cm
= Vanjska PVC stolarija s ALU roletama
= Ulazna vrata / protuprovalna - protupožarna
= Multi-Split inverter / Klimatizacijski uređaj u dnevnom boravku i spavaćoj sobi
= Podno grijanje u kupaonicama
 
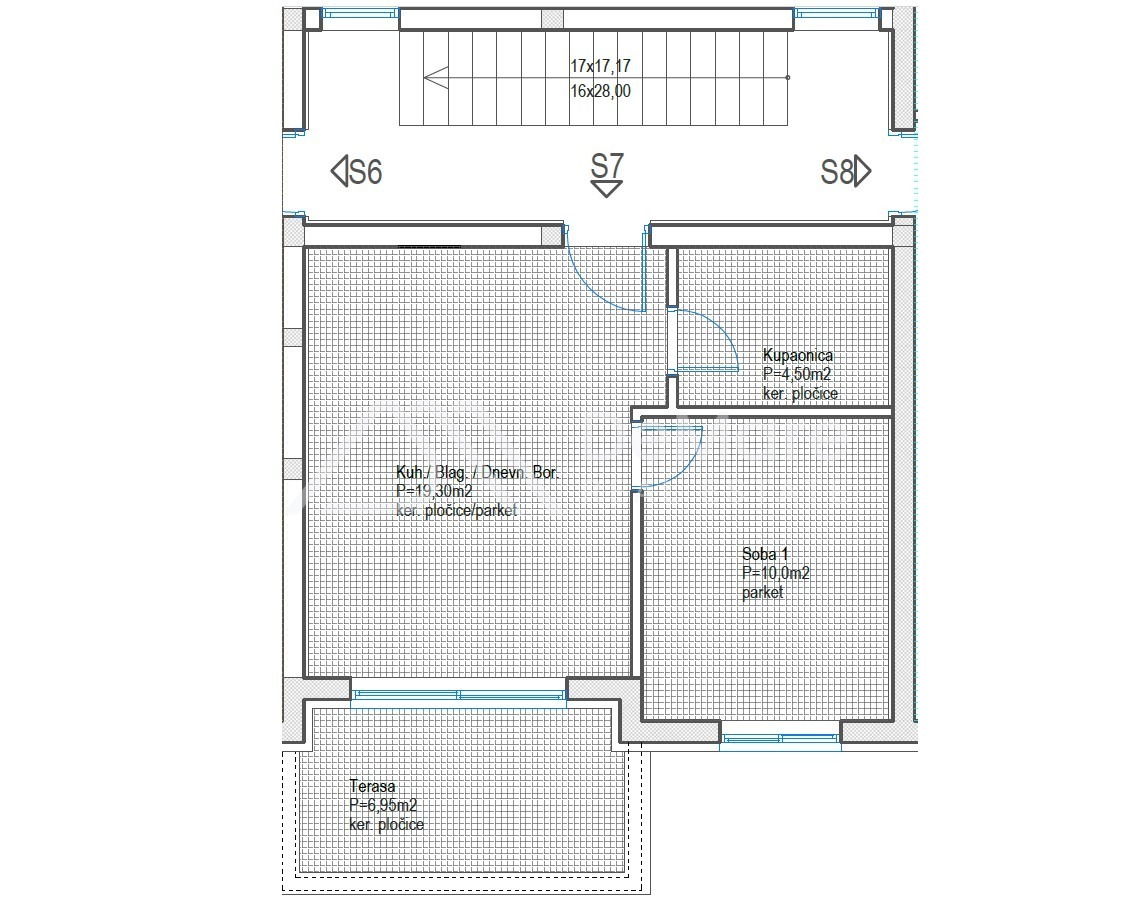
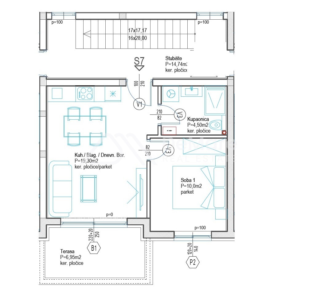
 2.  KAT  - Stan S7 s jednom spavaćom sobom i terasom
Stan se nalazi na 2. katu  zgrade i sastoji se od:
- Dnevnog boravka s kuhinjom i blagovaonicom (19,30 m2),
- Spavaće sobe (10,00 m2),
- Kupaonice (4,50 m2), i
- Terase (6,90 m2).
Unutarnja korisna površina stana iznosi 33,80 m2.
Stanu pripadaju dva vanjska parkirna mjesta (2 x 13,75 m2) na okućnici zgrade.
Ukupna obračunska korisna vrijednost površine stana iznosi 42,75  m2.
 
Postoji mogućnost odabira parketa i keramike od tri ponuđene opcije, ovisno o fazama gradnje i prema dogovoru s investitorom.
 
PREDNOST kod kupnje ove nekretnine :
Kupac NE PLAĆA porez na promet nekretnina, jer je investitor pouzdana pravna osoba s dugogodišnjim iskustvom u graditeljstvu, koji je u sustavu PDV-a.
 
LOKACIJA:
Plovanija je područje grada koje posebno zanimljivo mladim obiteljima, zbog blizine svih sadržaja potrebnih za svakodnevni život, kao i za turističke investicije zbog mirne lokacije, i dobre prometne povezanosti; kako sa centrom grada tako i sa zračnom lukom Zemunik.
Objekt se nalazi na mirnoj lokaciji 1,9 km udaljen je od mora i plaže, i 2,1 km do centra grada Zadra - poluotoka.
Zadarska zračna luka udaljena je svega 11 km i odlično je povezana sa mnogim europskim gradovima i destinacijama.
Trajektna luka Zadar koja je udaljena 6 km od objekta, ima linije sa većinom otoka, a tijekom ljetne sezone je stanica brojnim turističkim cruiserima.
 

Opis

Šifra S-I-1056
Tip prodaja - stan
Podtip Stan u zgradi
Država Hrvatska
Županija Zadarska
Grad Zadar
Općina Zadar
Kvart Plovanija
Ukupna cijena 184.000 EUR
Cijena po m2 4.304 EUR
Površina 42.75 m2
Udaljenost od mora 1800 m
Udaljenost od centra 2000 m
Broj soba 2
Broj kupaonica 1
Kat 2
Godina izgradnje 2026
Stanje Novogradnja,U izgradnji
Dodatni prostor
  • Blagovaona
  • Dnevni boravak
  • Kuhinja
  • Kupaona
  • Parking
  • Spavaća soba
  • Terasa
Infrastruktura
  • Gradski vodovod
  • Struja
Opis
  • Blizina dućana
  • Blizina škole
  • Miran predio
  • Prilaz - asfaltirani
  • Velike staklene stijene

Stan u zgradi

42.75 m2
S-I-1056
Cijena
184.000 EUR

Zanima vas ova nekretnina?

Kontaktirajte nas!

+385 23 300 400

info@demare.hr


Radno vrijeme:
Pon-Pet 8-16 sati i po dogovoru.

NAPOMENA! Ova stranica koristi kolačiće i slične tehnologije.

Ukoliko ne promijenite postavke preglednika, prihvaćate kolačiće. Saznaj više

Prihvaćam

Uporaba kolačića

Kako bi ova web stranica radila pravilno, kako bismo bili u stanju vršiti daljnja unaprjeđenja stranice, u svrhu poboljšavanja vašega iskustva pregledavanja, ova stranica mora na vaše računalo spremiti malenu količinu informacija ( Cookies ) . Preko 90 % svih web stranica koristi ovu praksu no prema regulacijama Europske unije od 25.03.2011. obvezni smo prije spremanja Cookie-a zatražiti vaš pristanak. Korištenjem web stranice pristajete na uporabu Cookie-a. Blokiranjem cookie i dalje možete pregledavati stranicu, no neke njezine mogućnosti Vam neće biti dostupne. 

Što je kolačić?
Kolačić je informacija spremljena na Vaše računalo od strane web stranice koju posjetite. Kolačići obično spremaju Vaše postavke, postavke za web stranicu, kao što su preferirani jezik ili adresa. Kasnije, kada opet otvorite istu web stranicu internet preglednik šalje natrag kolačiće koji pripadaju toj stranici. Ovo omogućava stranici da prikaže informacije prilagođene Vašim potrebama.

Kolačići mogu spremati širok pojas informacija uključujući osobne informacije (kao što je Vaše ime ili e-mail adresa). Ipak, ova informacija može biti spremljena jedino ako Vi to omogućite - web stranice ne mogu dobiti pristup informacijama koji im Vi niste dali i ne mogu pristupiti drugim datotekama na Vašem računalu. Zadane aktivnosti spremanja i slanja kolačića Vama nisu vidljive. Ipak, možete promjeniti Vaše postavke internet preglednika da možete sami birati hoćete li zahtjeve za spremanje kolačića odobriti ili odbiti, pobrišete spremljene kolačiće automatski pri zatvaranju internet preglednika i slično.

Kako onemogućiti kolačiće
Isključivanjem kolačića odlučujete da li hoćete dopustiti pohranjivanje kolačića na vašem računalu. Cookie postavke mogu se kontrolirati i konfigurirati u vašem web pregledniku. Za informacije o postavkama kolačića, odaberite web-preglednik koji koristite. • Chrome • Firefox • Internet Explorer 9 • Opera (stranica na engleskom jeziku) • Safari (stranica na engleskom) Ako onemogućite kolačiće, nećete moći koristiti neke od funkcionalnosti na web stranicama

Što su privremeni kolačići?
Privremeni kolačići ili kolačići sesije uklanjaju se s računala po zatvaranju internet preglednika. Pomoću njih web-mjesta pohranjuju privremene podatke, poput stavki u košarici za kupnju.

Što su stalni kolačići?
Stalni ili spremljeni kolačići ostaju na računalu nakon zatvaranja programa internet preglednika. Pomoću njih web-mjesta pohranjuju podatke, kao što su ime za prijavu i lozinka, tako da se ne morate prijavljivati prilikom svakog posjeta određenom mjestu. Stalni kolačići ostat će na računalu danima, mjesecima, čak i godinama.

Što su kolačići od prve strane?
Kolačići od prve strane dolaze s web-mjesta koje gledate, a mogu biti stalni ili privremeni. Pomoću tih kolačića web-mjesta mogu pohraniti podatke koje će ponovo koristiti prilikom sljedećeg posjeta tom web-mjestu.

Što su kolačići treće strane?
Kolačići treće strane dolaze s reklama drugih web-mjesta (kao što su skočne ili druge reklame) koje se nalaze na web-mjestu koje gledate. Pomoću tih kolačića web-mjesta mogu pratiti korištenje Interneta u marketinške svrhe.

Da li demare.hr koristi kolačiće?
Da, s primarnim ciljem kako bi naše web stranice vam omogućile bolje korisničko iskustvo.

Kakve kolačiće koristi demare.hr i zašto

Da li na web stranici ima kolačića treće strane?
Ima nekoliko vanjskih servisa koji korisniku spremaju limitirane kolačiće. Ovi kolačići nisu postavljeni od strane ove web stranice, ali neki služe za normalno funkcioniranje određenih mogućnosti koje korisnicima olakšavaju pristup sadržaju. Trenutno omogućujemo:

Dodatne informacija oko isključivanja kolačića
Trenutno postoji nekoliko web stranica za isključivanje pohranjivanja kolačića za različite servise.

Više se možete informirati na sljedećim linkovima: