Stanovi | S-M-1065 Zadar - Vidikovac

Osnovne informacije

U prodaji je kvalitetan projekt novogradnje na odličnoj lokaciji grada Zadra /na području Vidikovca.
Radi se o projektu u izgradnji stambene zgrade koja se sastoji od ukupno 9 stanova. Zgrada je projektirana na 3 etaže; prizemlje, prvi i drugi kat, a na okućnici zgrade je uređeno parkiralište za stanare.
Završetak građevinskih radova planirano je do kraja 2026. g.
 
OPREMA ZGRADE:
- Armiranobetonska konstrukcija zgrade 
- Ugrađeno dizalo
- Grijanje i hlađenje stanova - sustav klimatizacijskih jedinica, koje će biti postavljene u spavaćim sobama i dnevnom boravku
- Ugrađuje se elektropodno grijanje u svim prostorijama osim spavaćih soba
- Vanjska PVC stolarija sa troslojnim IZO-staklima, ugrađenim komarnicima i ALU roletama na električno upravljanje
- Svakom stanu pripadaju dva parkirna mjesta u dvorištu zgrade
- Termofasada /10 cm
- Ulazna vrata / protuprovalna i protupožarna
- Na ulazu u zgradu će biti montiran video portafon
 
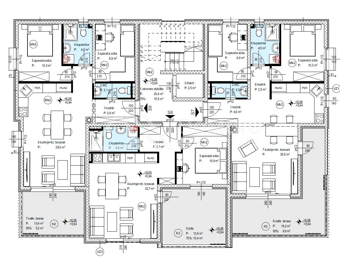
 2. KAT S7 : PENTHOUSE Stan s dvije spavaće sobe i krovnom terasom
Stan se nalazi na drugom katu zgrade i sastoji se od:
- Ulaznog dijela / Hodnika - 4,02 m2
- Dnevnog boravka, kuhinje i blagovaonice - 28,48 m2
- Predsoblja  / 2,54 m2
- Spavaće sobe - 10,28 m2
- Spavaće sobe - 8,93 m2
- Kupaonice - 4,54 m2
- Toaleta - 2,03 m2
- Lođe - 19,24 m2
Unutarnji prostor stana zauzima 61,26 m2.
Stanu pripada prostrana krovna terasa (84,28 m2) na kojoj se mogu postaviti razni sadržaji za boravak na otvorenom, a u dvorištu zgrade se nalaze i dva vanjska parkirna mjesta (27,50 m2) koja pripadaju stanu.
Bruto površina stana je 191,84 m2, a ukupna neto površina stana s pripadcima iznosi 102,26 m2.
 
Za obilazak lokacije i sve ostale informacije slobodno nas kontaktirajte!!
 
De Mare d.o.o.
Tel: +385 23 300 400
Mail: info@demare.hr
 
LOKACIJA:
Objekt se nalazi na mirnoj lokaciji, 5 minuta vožnje (1800 m) od mora i plaže, i 2,5 km do centra grada Zadra - poluotoka, a u blizini je svih potrebnih sadržaja (supermarket, škola, vrtić, ljekarna, medicinska i dentalna ambulanta, caffe bar, parki i igralište) za ugodan i miran život.
Zadarska zračna luka udaljena je svega 11 km i odlično je povezana sa mnogim europskim gradovima i destinacijama.

Trajektna luka Zadar koja je udaljena 6 km od objekta, ima linije sa većinom otoka, a tijekom ljetne sezone je stanica brojnim turističkim cruiserima.

Opis

Šifra S-M-1065
Tip prodaja - stan
Podtip Stan u zgradi
Država Hrvatska
Županija Zadarska
Grad Zadar
Općina Zadar
Kvart Vidikovac
Ukupna cijena 337.400 EUR
Cijena po m2 3.299 EUR
Površina 102.26 m2
Udaljenost od mora 1800 m
Udaljenost od centra 2500 m
Broj soba 3
Broj kupaonica 1
Kat 2
Godina izgradnje 2026
Stanje Novogradnja,U izgradnji
Energetska učinkovitost A
Dozvole
  • Vlasnički list
Dodatni prostor
  • Hodnik
  • Kuhinja
  • Kupaona
  • Loggia
  • Parking
  • Spavaća soba
  • Toalet
  • Dnevni boravak
  • Blagovaona
Infrastruktura
  • Gradski vodovod
  • Kanalizacija
  • Struja
Opis
  • Miran predio
  • Prilaz - asfaltirani
  • Velike staklene stijene

Stan u zgradi

102.26 m2
S-M-1065
Cijena
337.400 EUR

Zanima vas ova nekretnina?

Kontaktirajte nas!

+385 23 300 400

info@demare.hr


Radno vrijeme:
Pon-Pet 8-16 sati i po dogovoru.

NAPOMENA! Ova stranica koristi kolačiće i slične tehnologije.

Ukoliko ne promijenite postavke preglednika, prihvaćate kolačiće. Saznaj više

Prihvaćam

Uporaba kolačića

Kako bi ova web stranica radila pravilno, kako bismo bili u stanju vršiti daljnja unaprjeđenja stranice, u svrhu poboljšavanja vašega iskustva pregledavanja, ova stranica mora na vaše računalo spremiti malenu količinu informacija ( Cookies ) . Preko 90 % svih web stranica koristi ovu praksu no prema regulacijama Europske unije od 25.03.2011. obvezni smo prije spremanja Cookie-a zatražiti vaš pristanak. Korištenjem web stranice pristajete na uporabu Cookie-a. Blokiranjem cookie i dalje možete pregledavati stranicu, no neke njezine mogućnosti Vam neće biti dostupne. 

Što je kolačić?
Kolačić je informacija spremljena na Vaše računalo od strane web stranice koju posjetite. Kolačići obično spremaju Vaše postavke, postavke za web stranicu, kao što su preferirani jezik ili adresa. Kasnije, kada opet otvorite istu web stranicu internet preglednik šalje natrag kolačiće koji pripadaju toj stranici. Ovo omogućava stranici da prikaže informacije prilagođene Vašim potrebama.

Kolačići mogu spremati širok pojas informacija uključujući osobne informacije (kao što je Vaše ime ili e-mail adresa). Ipak, ova informacija može biti spremljena jedino ako Vi to omogućite - web stranice ne mogu dobiti pristup informacijama koji im Vi niste dali i ne mogu pristupiti drugim datotekama na Vašem računalu. Zadane aktivnosti spremanja i slanja kolačića Vama nisu vidljive. Ipak, možete promjeniti Vaše postavke internet preglednika da možete sami birati hoćete li zahtjeve za spremanje kolačića odobriti ili odbiti, pobrišete spremljene kolačiće automatski pri zatvaranju internet preglednika i slično.

Kako onemogućiti kolačiće
Isključivanjem kolačića odlučujete da li hoćete dopustiti pohranjivanje kolačića na vašem računalu. Cookie postavke mogu se kontrolirati i konfigurirati u vašem web pregledniku. Za informacije o postavkama kolačića, odaberite web-preglednik koji koristite. • Chrome • Firefox • Internet Explorer 9 • Opera (stranica na engleskom jeziku) • Safari (stranica na engleskom) Ako onemogućite kolačiće, nećete moći koristiti neke od funkcionalnosti na web stranicama

Što su privremeni kolačići?
Privremeni kolačići ili kolačići sesije uklanjaju se s računala po zatvaranju internet preglednika. Pomoću njih web-mjesta pohranjuju privremene podatke, poput stavki u košarici za kupnju.

Što su stalni kolačići?
Stalni ili spremljeni kolačići ostaju na računalu nakon zatvaranja programa internet preglednika. Pomoću njih web-mjesta pohranjuju podatke, kao što su ime za prijavu i lozinka, tako da se ne morate prijavljivati prilikom svakog posjeta određenom mjestu. Stalni kolačići ostat će na računalu danima, mjesecima, čak i godinama.

Što su kolačići od prve strane?
Kolačići od prve strane dolaze s web-mjesta koje gledate, a mogu biti stalni ili privremeni. Pomoću tih kolačića web-mjesta mogu pohraniti podatke koje će ponovo koristiti prilikom sljedećeg posjeta tom web-mjestu.

Što su kolačići treće strane?
Kolačići treće strane dolaze s reklama drugih web-mjesta (kao što su skočne ili druge reklame) koje se nalaze na web-mjestu koje gledate. Pomoću tih kolačića web-mjesta mogu pratiti korištenje Interneta u marketinške svrhe.

Da li demare.hr koristi kolačiće?
Da, s primarnim ciljem kako bi naše web stranice vam omogućile bolje korisničko iskustvo.

Kakve kolačiće koristi demare.hr i zašto

Da li na web stranici ima kolačića treće strane?
Ima nekoliko vanjskih servisa koji korisniku spremaju limitirane kolačiće. Ovi kolačići nisu postavljeni od strane ove web stranice, ali neki služe za normalno funkcioniranje određenih mogućnosti koje korisnicima olakšavaju pristup sadržaju. Trenutno omogućujemo:

Dodatne informacija oko isključivanja kolačića
Trenutno postoji nekoliko web stranica za isključivanje pohranjivanja kolačića za različite servise.

Više se možete informirati na sljedećim linkovima: