Zadar - Vidikovac
Prodaja - Stan
Osnovne informacije
Zgrada se sastoji od podruma u kojem su ostave za stanare i podzemna garaža, zatim prizemlja u kojem su poslovni prostori i tri kata gdje se nalaze 18 modernih i komfornih stanova za prodaju. Stanovi su različitih veličina i rasporeda, a svaki stan ima lođu ili terasu s pogledom na more ili grad.
U zgradu je ugrađen LIFT, a stanarima je na raspolaganju i vanjski natkriveni parking.
Ova nekretnina je idealna za one koji traže kvalitetan i udoban život u blizini svih sadržaja koje nudi grad Zadar, poput supermarketa, caffe bara, vrtića, škole s igralištima za djecu, ljekarne, restorana i obližnjih morskih plaža..
Završetak građevinskih radova i ishođenje uporabne dozvole očekuje se 06/2026.
OPREMA ZGRADE:
U ovom projektu koriste se najkvalitetniji materijali koji su ugrađeni prema najvišim standardima gradnje:
- Podzemna garaža s parkirališnim mjestima za stanare
- LIFT iz podzemne garaže do stanova
- Armirano-betonska konstrukcija koja je obložena knauf pločama
- Ventilirajuća fasada zgrade s oblogom od kamene vune (10 cm)
- Troslojna PVC stolarija s roletama na elektopogon i ugrađenim komarnicima
- Ostave za stanare u podrumu
Zgrada će imati energetski certifikat A.
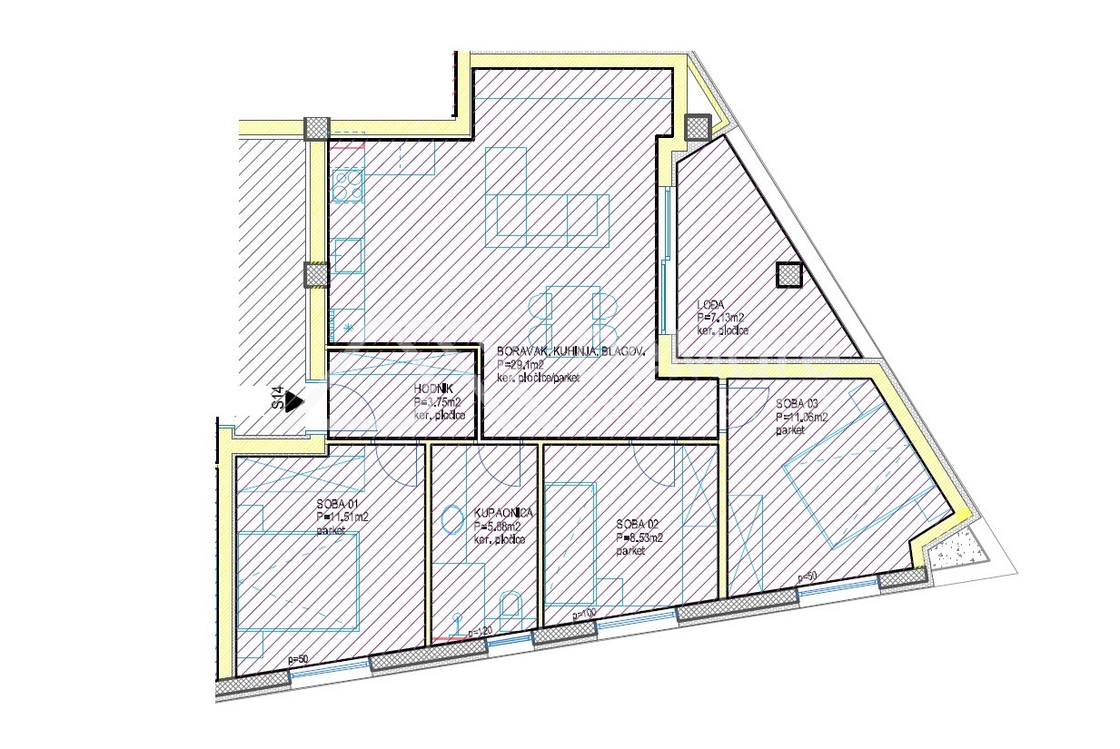
3. KAT - Stan S14 se sastoji od:
∞ hodnika (3,75 m2),
∞ tri spavaće sobe (11,51 m2, 8,53 m2, 11,06 m2),
∞ kupaonice (5,88 m2),
∞ dnevnog boravka s kuhinjom i blagovaonicom (29,10 m2) iz koje se izlazi na
∞ lođu (7,13 m2).
Stanu pripada i ostava u podrumu zgrade (3,84 m2), a na raspolaganju su i dva garažna parkirna mjesta za parkiranje automobila. (13,75 m2 + 13,75 m2).
Na krovu je prekrasna krovna terasa površine 83,80 m2, koja se može urediti i namjestiti za odmor i boravak na otvorenom, prema željama budućih vlasnika.
Unutarnja stambena površina stana je 69,83 m2, a ukupna obračunska korisna netto površina stana iznosi 111,81 m2.
OPREMA STANA:
- Podno grijanje je instalirano u dnevnom boravku i kupaonici
- Grijanje i hlađenje prostorija sa inverter klima uređajima
- Visokokvalitetni parket u dnevnom boravku i spavaćim sobama
- Keramičke pločice i sanitarije renomiranih proizvođača
- Ulazna vrata su protupožarna i protuprovalna
- Videoportafon
PREDNOST kod kupnje ove nekretnine: Prodavatelj je pravna osoba u sustavu pdv-a, pa stoga kupac NE PLAĆA porez na promet nekretnina!
Za obilazak lokacije / nekretnine i sve ostale informacije slobodno nas kontaktirajte.
De Mare d.o.o.
Tel: +385 23 300 400
Mail: info@demare.hr
LOKACIJA:
Objekt se nalazi na mirnoj lokaciji, 5 minuta vožnje (1800 m) od mora i plaže, i 2,5 km do centra grada Zadra - poluotoka, a u blizini je svih potrebnih sadržaja (supermarket, škola, vrtić, ljekarna, medicinska i dentalna ambulanta, caffe bar, parki i igralište) za ugodan i miran život.
Zadarska zračna luka udaljena je svega 11 km i odlično je povezana sa mnogim europskim gradovima i destinacijama.
Trajektna luka Zadar koja je udaljena 6 km od objekta, ima linije sa većinom otoka, a tijekom ljetne sezone je stanica brojnim turističkim cruiserima.
Opis
| Šifra | S-910 |
| Tip | prodaja - stan |
| Podtip | Stan u zgradi |
| Država | Hrvatska |
| Županija | Zadarska |
| Grad | Zadar |
| Općina | Zadar |
| Kvart | Vidikovac |
| Ukupna cijena | 366.700 EUR |
| Cijena po m2 | 3.280 EUR |
| Površina | 111.81 m2 |
| Udaljenost od mora | 1800 m |
| Udaljenost od centra | 2400 m |
| Broj soba | 4 |
| Broj kupaonica | 1 |
| Kat | 3 |
| Godina izgradnje | 2026 |
| Stanje | Novogradnja,U izgradnji |
| Energetska učinkovitost | A |
- Dodatni prostor
- Garažno mjesto
- Infrastruktura
- Gradski vodovod
- Kanalizacija
- Struja
- Opis
- Blizina dućana
- Blizina škole
- Prilaz - asfaltirani
- Projektna dokumentacija
- Velika terasa
Stan u zgradi
- 111.81 m2
- S-910
- Cijena
- 366.700 EUR