Stanovi | S-910 Zadar - Vidikovac

Osnovne informacije

U izgradnji je visoko kvalitetan, moderan projekt novogradnje po najvišim građevinskim standardima, u Zadru na atraktivnoj lokaciji.
Zgrada se sastoji od podruma u kojem su ostave za stanare i podzemna garaža, zatim prizemlja u kojem su poslovni prostori i tri kata gdje se nalaze 18 modernih i komfornih stanova za prodaju. Stanovi su različitih veličina i rasporeda, a svaki stan ima lođu ili terasu s pogledom na more ili grad.
U zgradu je ugrađen LIFT, a stanarima je na raspolaganju i vanjski natkriveni parking.
Ova nekretnina je idealna za one koji traže kvalitetan i udoban život u blizini svih sadržaja koje nudi grad Zadar, poput supermarketa, caffe bara, vrtića, škole s igralištima za djecu, ljekarne, restorana i obližnjih morskih plaža..
Očekuje se da će završetak građevinskih radova i izdavanje uporabne dozvole biti u lipnju 2026.
 
OPREMA ZGRADE:
U ovom projektu koriste se najkvalitetniji materijali koji su ugrađeni prema najvišim standardima gradnje:
- Podzemna garaža s parkirališnim mjestima za stanare
- LIFT iz podzemne garaže do stanova
- Armirano-betonska konstrukcija koja je obložena knauf pločama
- Ventilirajuća fasada zgrade s oblogom od kamene vune (10 cm)
- Troslojna PVC stolarija s roletama na elektopogon i ugrađenim komarnicima
- Ostave za stanare u podrumu
 
Zgrada će imati energetski certifikat A.
 
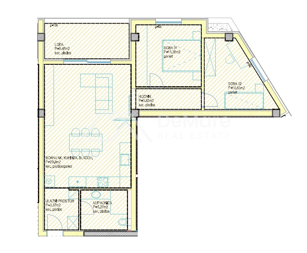
3. KAT - Stan S12 se sastoji od :
∞ ulaznog prostora (3,87 m2);
∞ 2 spavaće sobe (11,38 m2 i 10,63 m2),
∞ hodnika (3,83 m2),
∞ kupaonice (5,27 m2),
∞ dnevnog boravka s kuhinjom i blagovaonicom (29,90 m2) iz koje se izlazi na
∞ lođu (8,45 m2).
 
Stanu pripada i ostava u podrumu zgrade (4,48 m2), a na raspolaganju su i 2 garažna parkirna mjesta (13,75 m2 + 13,75 m2) za parkiranje automobila.
Na krovu se nalazi prostrana krovna terasa koja pripada stanu, površine 88,79 m2.
Unutarnja stambena površina je 64,88 m2, a ukupna obračunska korisna netto površina stana s pripadcima iznosi 109,42 m2.
 
OPREMA STANA:
- Podno grijanje je instalirano u dnevnom boravku i kupaonici
- Grijanje i hlađenje prostorija sa inverter klima uređajima
- Visokokvalitetni parket u dnevnom boravku i spavaćim sobama
- Keramičke pločice i sanitarije renomiranih proizvođača
- Ulazna vrata su protupožarna i protuprovalna
- Videoportafon
 
PREDNOST kod kupnje ove nekretnine: Prodavatelj je pravna osoba u sustavu pdv-a, pa stoga kupac NE PLAĆA porez na promet nekretnina!
Za obilazak lokacije / nekretnine i sve ostale informacije slobodno nas kontaktirajte.
 
De Mare d.o.o.
Tel: +385 23 300 400
Mail: info@demare.hr
 
LOKACIJA:
Objekt se nalazi na mirnoj lokaciji, 5 minuta vožnje (1800 m) od mora i plaže, i 2,5 km do centra grada Zadra - poluotoka, a u blizini je svih potrebnih sadržaja (supermarket, škola, vrtić, ljekarna, medicinska i dentalna ambulanta, caffe bar, parki i igralište) za ugodan i miran život.
Zadarska zračna luka udaljena je svega 11 km i odlično je povezana sa mnogim europskim gradovima i destinacijama.
Trajektna luka Zadar koja je udaljena 6 km od objekta, ima linije sa većinom otoka, a tijekom ljetne sezone je stanica brojnim turističkim cruiserima.
 

Opis

Šifra S-910
Tip prodaja - stan
Podtip Stan u zgradi
Država Hrvatska
Županija Zadarska
Grad Zadar
Općina Zadar
Kvart Vidikovac
Ukupna cijena 356.000 EUR
Cijena po m2 3.254 EUR
Površina 109.42 m2
Udaljenost od mora 1800 m
Udaljenost od centra 2400 m
Broj soba 3
Broj kupaonica 1
Etaža treći
Kat 3
Godina izgradnje 2026
Stanje Novogradnja,U izgradnji
Energetska učinkovitost A
Dodatni prostor
  • Blagovaona
  • Dnevni boravak
  • Garažno mjesto
  • Hodnik
  • Kuhinja
  • Kupaona
  • Loggia
  • Ostava
  • Parking
  • Spavaća soba
Infrastruktura
  • Gradski vodovod
  • Kanalizacija
  • Struja
Opis
  • Blizina dućana
  • Blizina škole
  • Prilaz - asfaltirani
  • Projektna dokumentacija

Stan u zgradi

109.42 m2
S-910
Cijena
356.000 EUR

Zanima vas ova nekretnina?

Kontaktirajte nas!

+385 23 300 400

info@demare.hr


Radno vrijeme:
Pon-Pet 8-16 sati i po dogovoru.

NAPOMENA! Ova stranica koristi kolačiće i slične tehnologije.

Ukoliko ne promijenite postavke preglednika, prihvaćate kolačiće. Saznaj više

Prihvaćam

Uporaba kolačića

Kako bi ova web stranica radila pravilno, kako bismo bili u stanju vršiti daljnja unaprjeđenja stranice, u svrhu poboljšavanja vašega iskustva pregledavanja, ova stranica mora na vaše računalo spremiti malenu količinu informacija ( Cookies ) . Preko 90 % svih web stranica koristi ovu praksu no prema regulacijama Europske unije od 25.03.2011. obvezni smo prije spremanja Cookie-a zatražiti vaš pristanak. Korištenjem web stranice pristajete na uporabu Cookie-a. Blokiranjem cookie i dalje možete pregledavati stranicu, no neke njezine mogućnosti Vam neće biti dostupne. 

Što je kolačić?
Kolačić je informacija spremljena na Vaše računalo od strane web stranice koju posjetite. Kolačići obično spremaju Vaše postavke, postavke za web stranicu, kao što su preferirani jezik ili adresa. Kasnije, kada opet otvorite istu web stranicu internet preglednik šalje natrag kolačiće koji pripadaju toj stranici. Ovo omogućava stranici da prikaže informacije prilagođene Vašim potrebama.

Kolačići mogu spremati širok pojas informacija uključujući osobne informacije (kao što je Vaše ime ili e-mail adresa). Ipak, ova informacija može biti spremljena jedino ako Vi to omogućite - web stranice ne mogu dobiti pristup informacijama koji im Vi niste dali i ne mogu pristupiti drugim datotekama na Vašem računalu. Zadane aktivnosti spremanja i slanja kolačića Vama nisu vidljive. Ipak, možete promjeniti Vaše postavke internet preglednika da možete sami birati hoćete li zahtjeve za spremanje kolačića odobriti ili odbiti, pobrišete spremljene kolačiće automatski pri zatvaranju internet preglednika i slično.

Kako onemogućiti kolačiće
Isključivanjem kolačića odlučujete da li hoćete dopustiti pohranjivanje kolačića na vašem računalu. Cookie postavke mogu se kontrolirati i konfigurirati u vašem web pregledniku. Za informacije o postavkama kolačića, odaberite web-preglednik koji koristite. • Chrome • Firefox • Internet Explorer 9 • Opera (stranica na engleskom jeziku) • Safari (stranica na engleskom) Ako onemogućite kolačiće, nećete moći koristiti neke od funkcionalnosti na web stranicama

Što su privremeni kolačići?
Privremeni kolačići ili kolačići sesije uklanjaju se s računala po zatvaranju internet preglednika. Pomoću njih web-mjesta pohranjuju privremene podatke, poput stavki u košarici za kupnju.

Što su stalni kolačići?
Stalni ili spremljeni kolačići ostaju na računalu nakon zatvaranja programa internet preglednika. Pomoću njih web-mjesta pohranjuju podatke, kao što su ime za prijavu i lozinka, tako da se ne morate prijavljivati prilikom svakog posjeta određenom mjestu. Stalni kolačići ostat će na računalu danima, mjesecima, čak i godinama.

Što su kolačići od prve strane?
Kolačići od prve strane dolaze s web-mjesta koje gledate, a mogu biti stalni ili privremeni. Pomoću tih kolačića web-mjesta mogu pohraniti podatke koje će ponovo koristiti prilikom sljedećeg posjeta tom web-mjestu.

Što su kolačići treće strane?
Kolačići treće strane dolaze s reklama drugih web-mjesta (kao što su skočne ili druge reklame) koje se nalaze na web-mjestu koje gledate. Pomoću tih kolačića web-mjesta mogu pratiti korištenje Interneta u marketinške svrhe.

Da li demare.hr koristi kolačiće?
Da, s primarnim ciljem kako bi naše web stranice vam omogućile bolje korisničko iskustvo.

Kakve kolačiće koristi demare.hr i zašto

Da li na web stranici ima kolačića treće strane?
Ima nekoliko vanjskih servisa koji korisniku spremaju limitirane kolačiće. Ovi kolačići nisu postavljeni od strane ove web stranice, ali neki služe za normalno funkcioniranje određenih mogućnosti koje korisnicima olakšavaju pristup sadržaju. Trenutno omogućujemo:

Dodatne informacija oko isključivanja kolačića
Trenutno postoji nekoliko web stranica za isključivanje pohranjivanja kolačića za različite servise.

Više se možete informirati na sljedećim linkovima: